Move-in ready end-terrace near top-rated primary school and town amenities.
Three recently refurbished double bedrooms
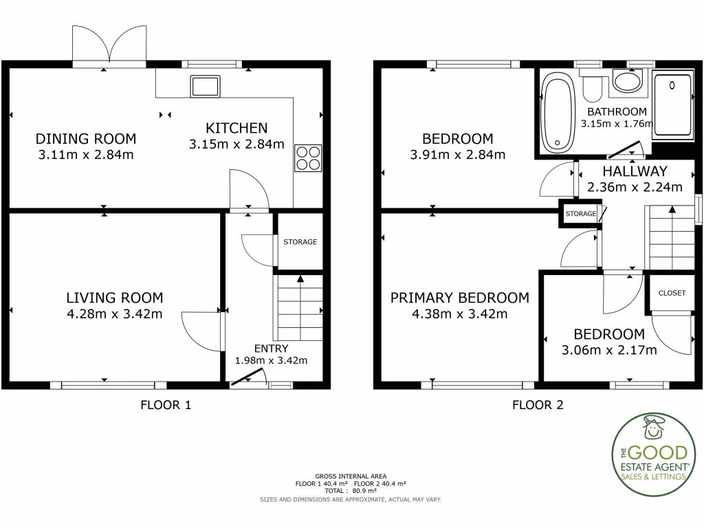
This recently refurbished three-bedroom end-of-terrace sits opposite Lacey Green Academy, making it an appealing choice for families wanting close school access. The ground floor has a bright living room and a brand-new kitchen/dining space with integrated appliances, quartz worktops and French doors opening onto a private rear garden.
Upstairs are three well-proportioned bedrooms and a family bathroom fitted with a freestanding roll-top bath and walk-in shower. The loft is boarded with a ladder and offers useful storage; the boiler is approximately four years old. The house is presented in contemporary neutral tones throughout and benefits from fast broadband and excellent mobile signal.
There is scope to create off-street parking to the front (subject to permissions), though currently a shared car park at the end of the road is used by residents and local school staff. The property is freehold, in council tax band B, and is well placed for Wilmslow town, local parks, Handforth Dean employment hubs and transport links into Manchester.
Notable points to consider: the home has a single family bathroom and parking is not yet formalised; any driveway creation would require planning and construction. Overall, this is a move-in-ready, modern family home with room to add value through practical external works.
3 bedroom terraced house for sale in Twinnies Road, Wilmslow, SK9 — £299,000 • 3 bed • 1 bath • 998 ft²
3 bedroom semi-detached house for sale in Carr Mill Mews, Wilmslow, SK9 — £285,000 • 3 bed • 1 bath • 678 ft²
3 bedroom detached house for sale in Primrose Way, Wilsmlow, SK9 — £489,950 • 3 bed • 2 bath • 1623 ft²
3 bedroom semi-detached house for sale in Wilmslow Road, Heald green, SK8 — £445,000 • 3 bed • 2 bath • 1547 ft²
3 bedroom terraced house for sale in Pickmere Road, Wilmslow, SK9 — £325,000 • 3 bed • 1 bath • 969 ft²
3 bedroom end of terrace house for sale in Hampson Crescent, Wilmslow, SK9 — £375,000 • 3 bed • 1 bath • 865 ft²






































































































