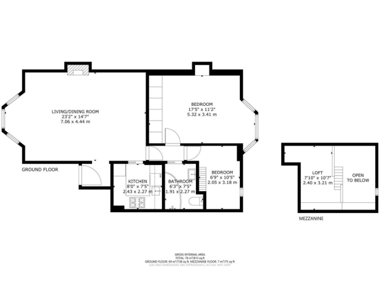
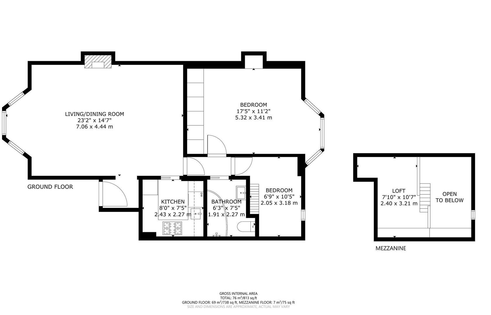
Light-filled two-bedroom with communal garden near Holland Park and shops.
2 double bedrooms with generous principal bedroom and built-in wardrobes
Large reception/dining room with high ceilings and bay windows
Access to a well-kept communal garden on a leafy street
813 sq ft; raised ground-floor position in period conversion
Leasehold: 83 years remaining — factor for mortgage/extension
Service charge approx £1,100; ground rent £120 per year
Solid brick walls likely uninsulated — potential retrofit costs
Area crime levels above average; consider security investment
Set on the raised ground floor of a handsome Victorian conversion, this two-bedroom apartment combines generous proportions with abundant period character. High bay windows and lofty ceilings fill the large reception and principal bedroom with light, while integrated storage and a well-designed kitchen keep the layout practical for everyday family life.
Residents share access to a well-kept communal garden and benefit from a peaceful, leafy street location within easy reach of Holland Park, High Street Kensington and Westfield London. Several highly regarded state and independent schools are within close proximity, making this a convenient choice for families.
Important practical points are clear: the flat is leasehold with 83 years remaining, subject to a service charge of around £1,100 and a ground rent of £120 per year. The building’s solid brick walls are likely uninsulated, which could mean higher heating costs or the need for retrofit insulation works. Crime levels in the area are above average, so consider security measures.
Overall this is a characterful, well-proportioned period flat in an attractive central location with good transport, fast broadband and excellent mobile signal. It will suit buyers looking for light, spacious rooms and proximity to green space, but budget-conscious purchasers should factor in lease position, ongoing charges and potential thermal upgrades.
2 bedroom flat for sale in Elsham Road, London, W14 — £630,000 • 2 bed • 1 bath • 676 ft²
1 bedroom flat for sale in Elsham Road, London, W14 — £450,000 • 1 bed • 1 bath • 481 ft²
2 bedroom flat for sale in Elsham Road, Holland Park, London, W14 — £675,000 • 2 bed • 2 bath • 712 ft²
2 bedroom flat for sale in Elsham Road, London, W14 — £625,000 • 2 bed • 1 bath • 687 ft²
2 bedroom apartment for sale in Russell Road, London, W14 8, W14 — £950,000 • 2 bed • 1 bath • 920 ft²
2 bedroom apartment for sale in Holland Road, Holland Park, London, W14 — £625,000 • 2 bed • 1 bath • 696 ft²






































































