Large plot with parking and extension potential in a peaceful village setting.
Three double bedrooms with built-in wardrobe storage
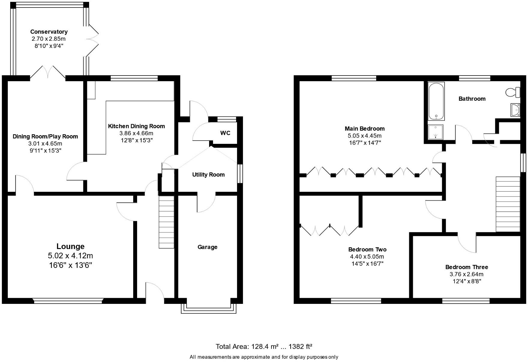
Set on a large plot in a quiet village location, this three-bedroom detached house offers roomy, well-presented accommodation for a growing family. The ground floor includes two reception rooms, a conservatory and a modern kitchen with utility and downstairs WC, giving flexibility for living and play. Upstairs are three double bedrooms, each with built-in wardrobe space, and a family bathroom with both bath and separate shower.
Outside space is a major strength: a generous rear garden with patio, summer house, glasshouse and two sheds, plus a wide gravel driveway and garage providing parking for multiple vehicles. Recent improvements to the front driveway, fencing and gates reduce immediate maintenance needs and make the plot ready to enjoy. There is scope to extend the house subject to planning permission, which will appeal to buyers seeking extra space (STPP).
Buyers should note a few practical considerations: the property is heated by an oil-fired boiler (not mains gas), broadband speeds in the area are slow, and the EPC is rated E. There is a medium flood risk for the area and only one family bathroom upstairs for three double bedrooms. These factors are straightforward to assess so buyers can plan any upgrades or surveys before purchase.
Overall this detached home suits families wanting generous outdoor space, flexible living rooms and parking in a village setting with local schools and amenities close by. It will also interest buyers wanting extension potential, though any works should be progressed through the usual planning channels.
5 bedroom detached house for sale in Station Road, Terrington St. Clement, King's Lynn, Norfolk, PE34 — £588,000 • 5 bed • 2 bath • 2899 ft²
4 bedroom detached house for sale in Lovell Way, King's Lynn, PE34 — £380,000 • 4 bed • 2 bath • 1611 ft²
3 bedroom detached house for sale in Chapel Road, Terrington St Clement, King's Lynn, PE34 — £295,000 • 3 bed • 3 bath • 1250 ft²
4 bedroom detached house for sale in Terrington St. Clement, King's Lynn, Norfolk, PE34 — £465,000 • 4 bed • 2 bath • 1365 ft²
4 bedroom detached house for sale in Manor Road, Terrington St. Clement, King's Lynn, PE34 — £325,000 • 4 bed • 1 bath • 1130 ft²
3 bedroom detached bungalow for sale in Hay Green Road South, Terrington St. Clement, King's Lynn, PE34 — £325,000 • 3 bed • 1 bath • 1076 ft²






















































































































































































