Large 1,320 sq ft retail unit with upstairs rooms and clear redevelopment potential..
Freehold mixed-use building with prominent London Road North frontage
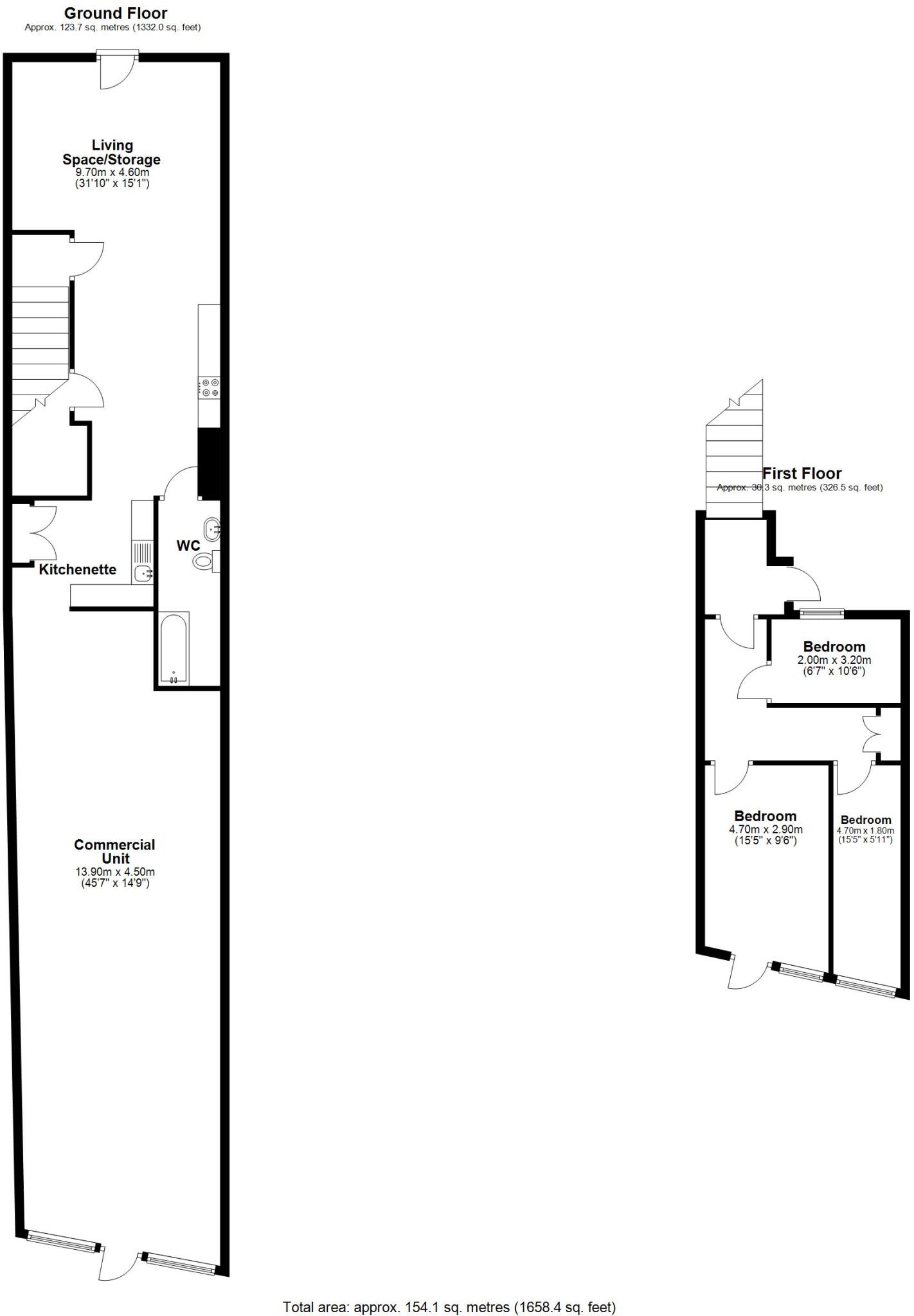
Ground-floor commercial space approx. 1,320 sq ft, versatile layout
First floor has three rooms labelled as bedrooms; conversion potential
Rear access, kitchenette, WC and separate storage/ancillary room
Busy high-street location with strong footfall and transport links
Area classified very deprived; local crime levels are very high
Small plot with no visible private garden or external amenity space
Conversion or change of use will likely require planning approval
A substantial freehold on London Road North offering immediate trading space plus residential potential upstairs. The 1,320 sq ft ground floor provides a large, visible retail frontage with rear kitchenette, WC and storage — ready for retail, office, studio or clinical use. The building sits on a busy high street with regular footfall and excellent transport links to Lowestoft train and bus stations.
The first floor comprises three rooms currently described as bedrooms and could serve as owner accommodation, rental income, or be reconfigured into a self-contained flat subject to planning. The property’s split-level layout and rear access increase functional flexibility for multi-use occupation or conversion.
Important practical points are clear: the surrounding area is classified as very deprived with very high recorded crime, and the plot is small with no visible private garden. Any change of use or full residential conversion will require planning approval and possible refurbishment. The property is offered freehold at a price reflecting both the central, high-footfall location and the need for onward investment.
This is a pragmatic opportunity for investors or owner-occupiers seeking a prominent, multi-use freehold in Lowestoft — particularly those comfortable operating in a high-street environment and factoring refurbishment or planning into their business case.
High street retail property for sale in London Road North, Lowestoft, NR32 — £130,000 • 1 bed • 1 bath • 1291 ft²
High street retail property for sale in Bevan Street East, Lowestoft, NR32 — £87,500 • 1 bed • 1 bath • 1224 ft²
High street retail property for sale in London Road South, Lowestoft, NR33 — £450,000 • 1 bed • 1 bath • 7233 ft²
High street retail property for sale in High Street, Lowestoft, NR32 — £85,000 • 1 bed • 1 bath • 1204 ft²
Commercial property for sale in Surrey Street, Lowestoft, Suffolk, NR32 — £150,000 • 10 bed • 2 bath • 2452 ft²
Restaurant for sale in Denmark Road, Lowestoft, NR32 — £170,000 • 3 bed • 1 bath • 1400 ft²


















































