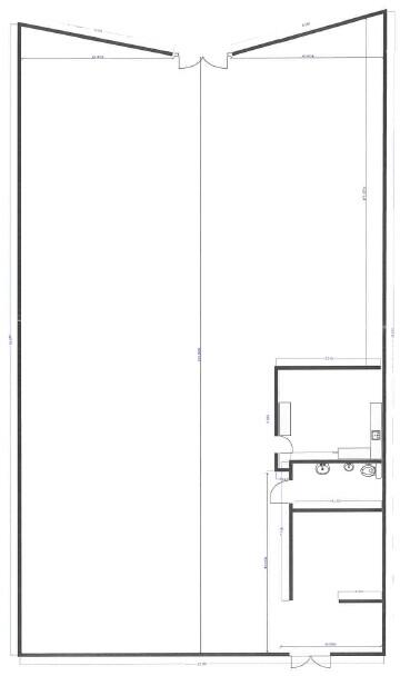
**Standout Features:**
- Spacious 673 sq.m. commercial/storage unit
- Lapsed planning permission for 14 flats and 2 shops
- Office space, WC, and kitchenette included
- Rear loading access and potential parking for deliveries
- Secured premises with CCTV and alarm system
- Excellent footfall in a prime location near the seafront
- EPC rating B - energy efficient
This 673 sq.m. commercial property on London Road South in Lowestoft presents an outstanding opportunity for investors and entrepreneurs alike. With its expansive layout, the space accommodates various business ventures or offers a potential redevelopment opportunity, as it boasts lapsed planning permission for 14 residential flats and two retail shops. The unit features essential amenities, including office space, a WC, and a kitchenette, all set within a modern, secure environment that is equipped with CCTV and alarm systems.
Located near the seafront, this property benefits from high foot traffic and excellent transport links, making it a prime spot for retail or other commercial uses. The rear loading access coupled with potential parking provisions adds value for logistics and operations. Though the local area has higher crime rates and represents a transitional neighborhood, the property’s energy efficiency and spaciousness underscore its long-term investment potential. Whether you see it as a chance to establish a new business, capitalize on immediate rental opportunities, or embark on a redevelopment venture, this property should not be overlooked. Act now before this prime opportunity slips away!
High street retail property for sale in London Road North, Lowestoft, NR32 — £190,000 • 1 bed • 1 bath • 1320 ft²
High street retail property for sale in London Road North, Lowestoft, NR32 — £130,000 • 1 bed • 1 bath • 1291 ft²
2 bedroom apartment for sale in London Road South, Lowestoft, NR33 — £125,000 • 2 bed • 1 bath • 603 ft²
Commercial property for sale in Riverside Road, Lowestoft, NR33 — £3,650,000 • 1 bed • 1 bath
High street retail property for sale in 113 London Road North, Lowestoft, Suffolk, NR32 — £350,000 • 1 bed • 1 bath • 2820 ft²
Commercial property for sale in London Road South, Lowestoft, NR33 — £225,000 • 3 bed • 1 bath • 1750 ft²














