**Highlights:**
- Fully licensed HMO with Lawful Development Certificate
- EPC rating C
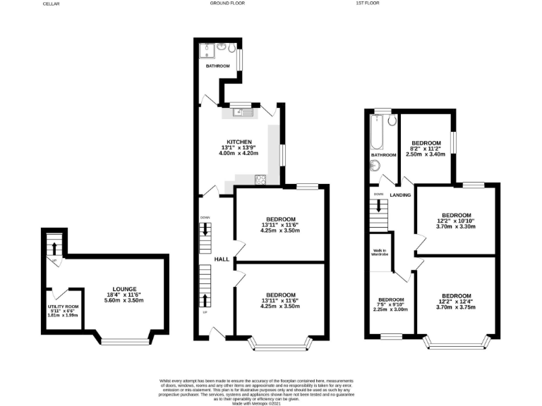
- 6 bedrooms with a strong annual rental income of £43,500
- Already tenanted for the next two academic years
- Prime location in a vibrant student area near Smithdown Road
- Close proximity to multiple universities
- Excellent mobile signal and fast broadband available
- Affordable council tax
This charming Victorian end-terrace property in the sought-after L15 postcode offers an exceptional investment opportunity for those looking to enter the student housing market. Featuring six well-proportioned bedrooms, this fully licensed HMO has been successfully generating an impressive annual income of £43,500, with tenancies already secured for the next two academic years.
Located in a cosmopolitan neighbourhood, just a short distance from bars, restaurants, and essential amenities, tenants will appreciate the vibrant lifestyle it offers. The property boasts double-glazed windows, solid brick walls with internal insulation, and a main gas heating system to ensure comfort.
Investors will recognize the appeal of being within a quick drive to Liverpool Hope University and Liverpool John Moores University, making it a perfect spot for students. Though the home is well-maintained, potential buyers should be aware of the underlying condition typical of older builds, particularly in terms of ongoing maintenance.
Don’t miss this chance to secure a profitable property in a prime location—opportunities like this are rarely available for long!
6 bedroom terraced house for sale in Brookdale Road, Liverpool, Merseyside, L15 — £350,000 • 6 bed • 1 bath • 1270 ft²
6 bedroom terraced house for sale in Avondale Road, Liverpool, Merseyside, L15 — £350,000 • 6 bed • 1 bath • 1389 ft²
6 bedroom end of terrace house for sale in Lawrence Road, Liverpool, L15 — £360,000 • 6 bed • 2 bath • 1114 ft²
4 bedroom terraced house for sale in Brookdale Road, Liverpool, Merseyside, L15 — £250,000 • 4 bed • 1 bath • 1033 ft²
4 bedroom terraced house for sale in Kenmare Road, Liverpool, Merseyside, L15 — £250,000 • 4 bed • 1 bath • 1163 ft²
7 bedroom terraced house for sale in Ashfield Road, Liverpool, Merseyside, L15 — £380,000 • 7 bed • 1 bath • 2637 ft²


































