**Standout Features:**
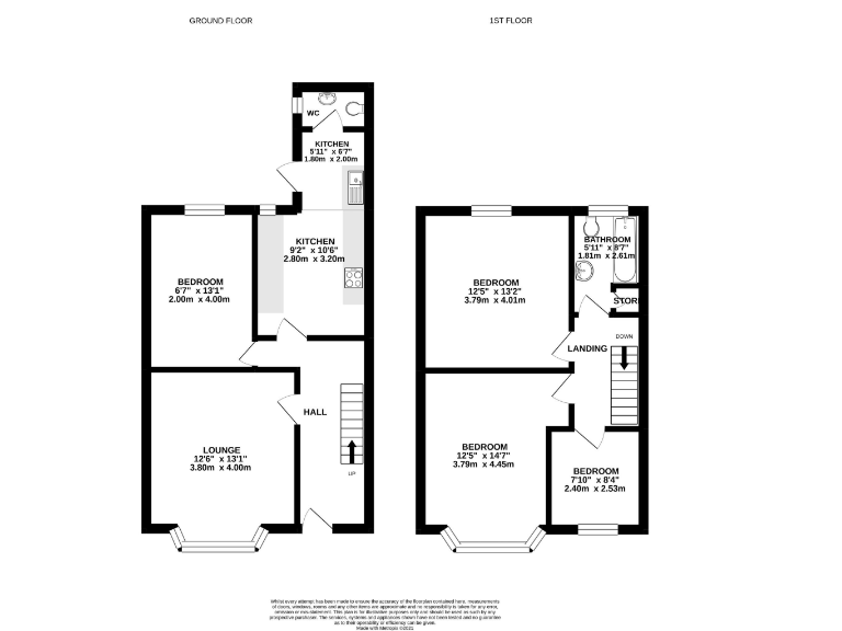
- 4-bedroom terraced property in a thriving student neighborhood
- Fully licensed HMO with a Lawful Development Certificate
- Annual turnover of £26,000; pre-leased for the next two academic years
- Conveniently located near key local universities (10-15 minute drive)
- Strong local amenities including bars, restaurants, and grocery stores
- EPC rating of C, double glazing installed post-2002
- Affordable council tax
**Potential Concerns:**
- Above-average crime rate in the area
- Small plot size with assumed solid brick walls and no insulation
- Average area deprivation
In the heart of the popular Wavertree student locale, this Edwardian terraced home offers investors a remarkable opportunity with proven rental income. Featuring four cozy bedrooms and charming Victorian period details, the property comes fully licensed as an HMO and is already generating £26,000 annually, with lease agreements in place for the next two academic years. Enjoy fast broadband, excellent mobile coverage, and proximity to Liverpool’s vibrant city life and local universities—making it ideal for students seeking convenience and comfort. While the property does come with some concerns regarding crime rates and insulation, its strong rental history and attractive amenities present a compelling case for future investors. Seize this chance to own a reliable investment in a lucrative area—properties like this don’t stay on the market long!















