Huge freehold site with barns and strong conversion potential near transport links.
- Circa 1.55 acres including yard and paddock
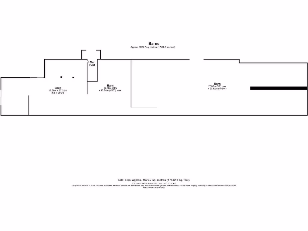
- Almost 18,000 sqft of barns and storage buildings
- Freehold with development potential (subject to planning)
- Buildings partly derelict; substantial refurbishment required
- Disused on-site office and multiple outbuildings
- Excellent road links; Biggleswade station ~1.7 miles
- No existing planning consent for change of use
- Semi-rural edge-of-village setting, low crime
An exceptionally large freehold parcel extending to circa 1.55 acres with almost 18,000 sqft of existing barns, storage and workshop space. The buildings — formerly used for agricultural storage — provide a substantial footprint for continued commercial use, conversion or redevelopment, subject to securing planning permission from Central Bedfordshire LPA. Good local transport links place Biggleswade station about 1.7 miles away, with easy access to the A1 and M1.
The site offers clear development potential: spacious industrial-style barns with high ceilings and flat roofs could suit light industrial, storage, or bespoke residential conversion schemes (subject to planning). The yard, outbuildings, paddock and disused office create flexibility for a mixed-use approach or phased redevelopment while retaining operational use during a planning application.
Buyers should note the buildings are derelict in parts and will require significant investment to modernise or convert. There is no existing planning permission included; any change of use or redevelopment will rely on successful applications to the local planning authority. Services, internal layouts and exact floorplans are not provided and will need on-site survey verification.
This opportunity will suit developers, investors or operators seeking a large, edge-of-village site with scope to repurpose an extensive agricultural/commercial footprint close to regional transport corridors and village amenities. The setting is semi-rural with low local crime, good schools nearby and strong potential to add value through refurbishment or redevelopment.
Land for sale in East Road, Langford, SG18 9, SG18 — £185,000 • 1 bed • 1 bath
5 bedroom house for sale in Crown Lane, Langford, Bedfordshire, SG18 9NU, SG18 — £1,250,000 • 5 bed • 2 bath • 6500 ft²
5 bedroom detached house for sale in East Road, Langford, Biggleswade, SG18 9QW, SG18 — £975,000 • 5 bed • 3 bath • 3527 ft²
Warehouse for sale in The Warehouse Old Station Yard, Station Road, Tempsford, Sandy, SG19 — £1,000,000 • 1 bed • 1 bath • 11162 ft²
Land for sale in RESIDENTIAL DEVELOPMENT OPPORTUNITY, Brook End Farm, Riseley Road, MK44 — £750,000 • 1 bed • 1 bath • 2529 ft²
Land for sale in Astwick Bury Farm, Astwick, Bedfordshire, SG5 4BH, SG5 — £600,000 • 1 bed • 1 bath • 28750 ft²






































