South-facing forecourt, waterside views, ready for modern family life.
Stone-built three-storey house, constructed in 2020
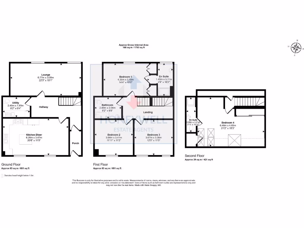
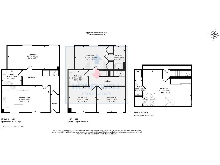
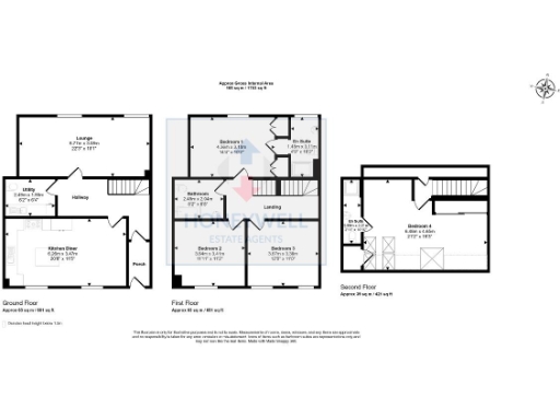
This substantial three-storey stone townhouse offers family-sized accommodation across about 1,783 sq ft. Built in 2020, the home feels modern yet retains traditional stone character and benefits from bright rooms, rooflights to the top floor and pleasant outlooks across Sabden Brook.
The ground floor centres on a large dining kitchen with island and integrated appliances, plus a separate lounge, utility and ground-floor WC. There is private cobbled parking to the front and a south-facing stone-paved forecourt garden, both low-maintenance and practical for family life.
Sleeping accommodation includes a first-floor principal bedroom with ensuite and wardrobes, two further double bedrooms and a family bathroom, with a generous top-floor bedroom and second ensuite under rooflights — useful as a teenagers’ retreat or guest suite. Local amenities, good primary schools and highly rated secondary options make the location attractive to families.
Important practical points: the property is leasehold, council tax is above average and the site is in a high flooding-risk area — flood resilience measures and insurance cost should be factored into any purchase. The private parking is cobbled and compact, so manoeuvring may be tight for larger vehicles.
2 bedroom terraced house for sale in Pendle Street West, Sabden, BB7 9EG, BB7 — £175,000 • 2 bed • 1 bath • 900 ft²
3 bedroom terraced house for sale in Thorn Street, Sabden, BB7 9EY, BB7 — £239,950 • 3 bed • 1 bath • 1170 ft²
4 bedroom semi-detached house for sale in Beckside, Salterforth, BB18 — £334,995 • 4 bed • 2 bath • 962 ft²
4 bedroom semi-detached house for sale in Lodge View, Commercial Street, Loveclough, Rossendale, BB4 — £325,000 • 4 bed • 2 bath • 1272 ft²
4 bedroom detached house for sale in Great Clough Drive, Loveclough, Rossendale, Lancashire, BB4 — £510,000 • 4 bed • 2 bath • 1485 ft²
4 bedroom detached house for sale in Brooks Hall Barn Higham Hall Road, Higham, BB12 — £400,000 • 4 bed • 1 bath • 2143 ft²


















































































































