Chain-free home with a large kitchen and quick commute to the station.
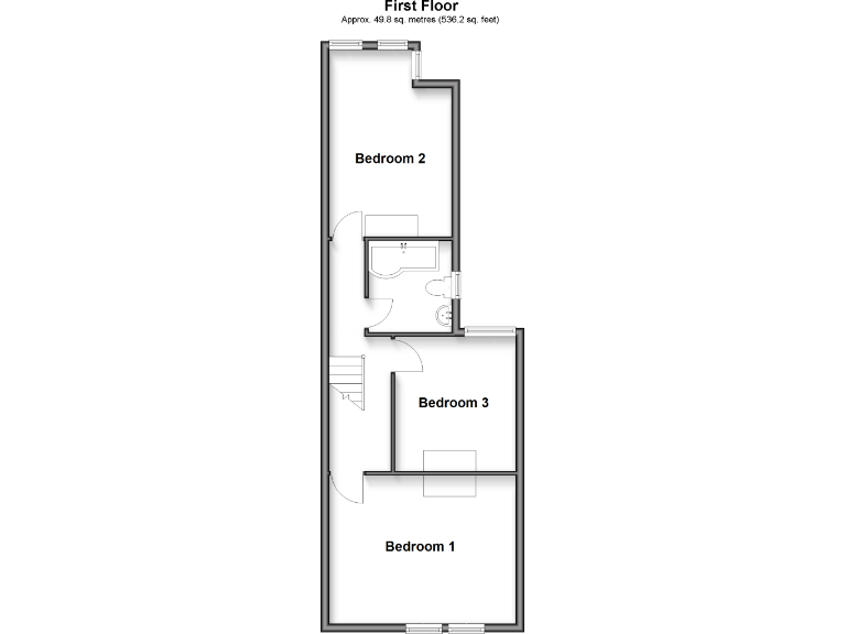
Three bedrooms and one bathroom
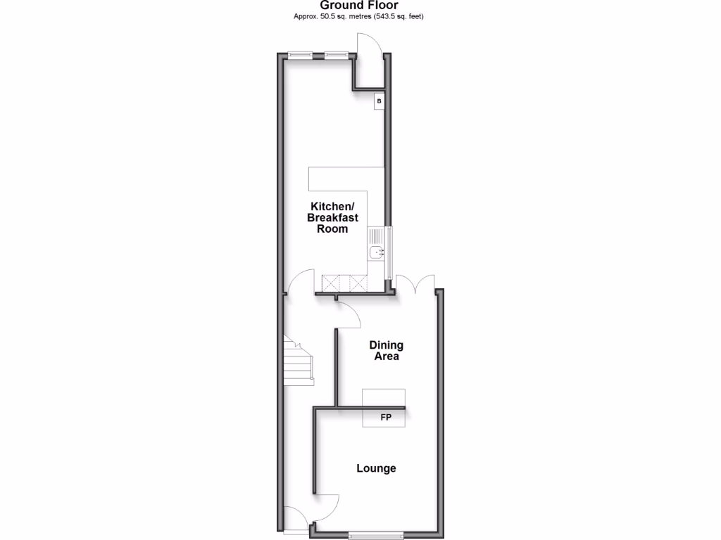
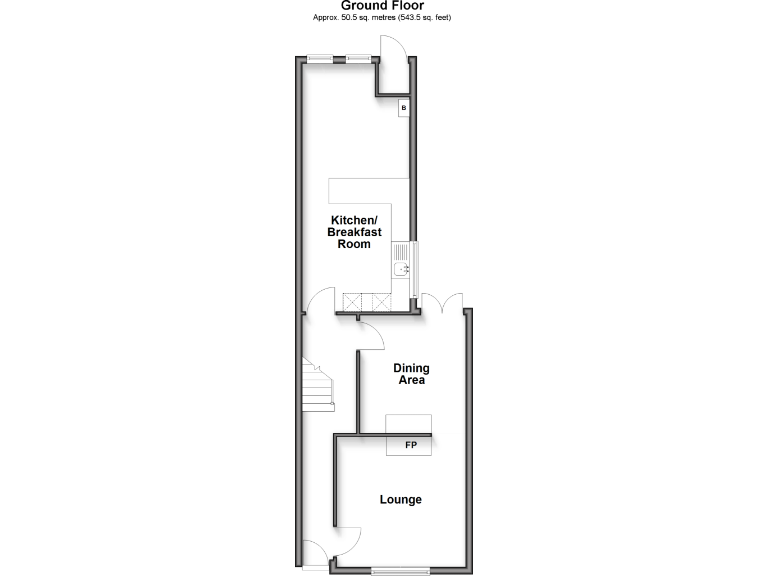
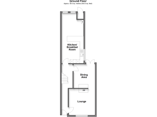
Extended kitchen/breakfast room, 22'5" x 9'5"
Private rear garden, small plot size
Chain free — immediate possession possible
Excellent access to Fratton train station and local amenities
Average-sized home; traditional layout, potential to modernise
Walls assumed cavity without insulation — upgrade likely needed
Built 1950–66; check planning/consents for any extensions
This three-bedroom end-of-terrace in Fratton offers straightforward city living with immediate access to Fratton train station and local shops. The property is chain free and has a large extended kitchen/breakfast room that provides flexible family space and good natural light.
The house is an average-sized home on a small plot with a private rear garden. Interiors are largely traditional in layout with one bathroom; the property will suit first-time buyers or investors seeking a rental with easy transport links and fast broadband.
There is scope to improve and modernise: some elements appear dated and walls are assumed to have no cavity insulation, so buyers should budget for updating heating or insulation and possible cosmetic refurbishment. All measurements and tenure details should be verified by your solicitor.
3 bedroom end of terrace house for sale in Thorncroft Road, Fratton, Portsmouth, Hampshire, PO1 — £230,000 • 3 bed • 1 bath • 867 ft²
3 bedroom terraced house for sale in Samuel Road, Portsmouth, Hampshire, PO1 — £210,000 • 3 bed • 1 bath • 879 ft²
3 bedroom terraced house for sale in Church Road, Portsmouth, PO1 — £240,000 • 3 bed • 1 bath • 861 ft²
3 bedroom terraced house for sale in Guildford Road, Fratton, PO1 — £255,000 • 3 bed • 1 bath • 685 ft²
3 bedroom terraced house for sale in Clive Road, Portsmouth, Hampshire, PO1 — £260,000 • 3 bed • 1 bath • 951 ft²
2 bedroom terraced house for sale in Shearer Road, Portsmouth, Hampshire, PO1 — £215,000 • 2 bed • 1 bath • 817 ft²






































