Chain-free period property with refurbishment potential near transport and schools.
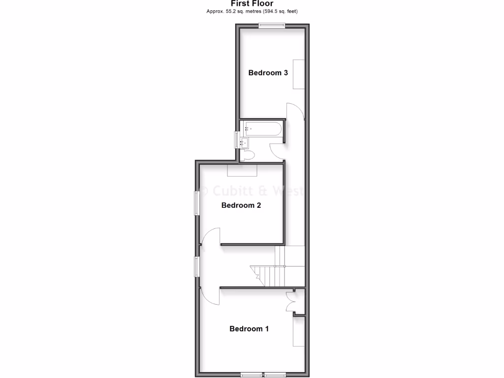
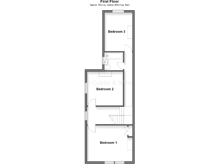
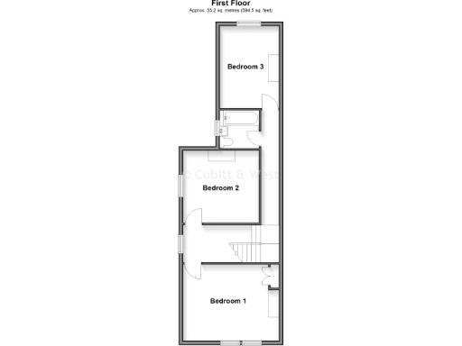
- Three double bedrooms throughout the house
- Chain free with vacant possession and freehold
- Requires full modernisation and cosmetic updating
- Single first-floor bathroom only
- Small enclosed rear garden with side access
- Likely poor cavity wall insulation (as built, uninsulated)
- Double glazing present; install date unknown
- Excellent public transport and local amenities nearby
A Victorian end-of-terrace offering three double bedrooms and genuine character in central Fratton. The house is chain free with vacant possession and freehold tenure, making it straightforward for a first purchase or renovation project.
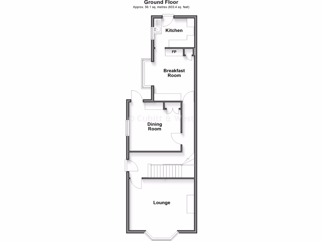
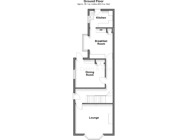
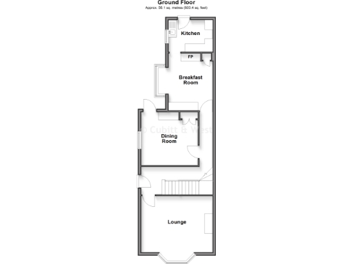
The property requires modernisation throughout: dated fixtures, worn wallpaper and flooring, and likely upgrades to insulation and services. The layout includes a bay-fronted lounge, separate dining and breakfast rooms, modest kitchen, and a first-floor bathroom — practical spaces ready for refurbishment.
Outside, a small enclosed rear garden with side access provides outdoor space in a city location. Excellent public transport links and nearby shops, schools and amenities suit commuters and families wanting quick links across Portsmouth.
This is a rare opportunity to restore a property offered for the first time in over 140 years; buyers should budget for renovation work and verify services, planning and consents before purchase.
3 bedroom end of terrace house for sale in Walmer Road, Portsmouth, Hampshire, PO1 — £240,000 • 3 bed • 1 bath • 883 ft²
3 bedroom terraced house for sale in Newcome Road, Fratton, PO1 — £229,995 • 3 bed • 1 bath • 998 ft²
3 bedroom terraced house for sale in Mayles Road, Southsea, PO4 — £265,000 • 3 bed • 1 bath • 1030 ft²
2 bedroom terraced house for sale in Shearer Road, Portsmouth, Hampshire, PO1 — £215,000 • 2 bed • 1 bath • 817 ft²
3 bedroom terraced house for sale in Guildford Road, Fratton, PO1 — £255,000 • 3 bed • 1 bath • 685 ft²
3 bedroom end of terrace house for sale in Thorncroft Road, Fratton, Portsmouth, Hampshire, PO1 — £152,500 • 3 bed • 1 bath • 867 ft²


































































