Sunny single-storey living with extension potential in south Chesham.
South-facing private rear garden with woodland views
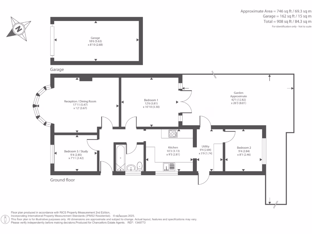
A light, single-storey three-bedroom semi-detached bungalow on Cavendish Road, quietly positioned on Chesham’s south side with woodland views and a sunny south-facing garden. The property, built in the late 1960s/early 1970s, offers comfortable single-level living and scope to extend subject to planning (STPP), making it appealing to downsizers or families seeking future growth.
Internally the layout is straightforward: entrance hall, living room, three bedrooms, kitchen, utility area and a family bathroom. The plot is a decent size with a private rear garden and good broadband and mobile signal — useful for home working. Nearby highly regarded secondary schools and local country walks add lifestyle value.
Buyers should note the home is an average-sized bungalow of its era: the cavity walls are as built (insulation assumed absent), double glazing is present but age unknown, and there is just one bathroom. These factors, together with the mid-century construction, suggest sensible budget allowance for energy improvements and cosmetic updating to modern standards.
Overall this property suits someone looking for level living now with realistic potential to add space and value later. It combines a convenient town-side location, low local crime, fast connectivity and attractive outdoor space, while requiring some updating and possible energy-efficiency work.
4 bedroom semi-detached house for sale in Larks Rise, Chesham, HP5 — £450,000 • 4 bed • 1 bath • 1117 ft²
3 bedroom semi-detached bungalow for sale in Nalders Road, Chesham, HP5 — £475,000 • 3 bed • 1 bath • 888 ft²
3 bedroom semi-detached bungalow for sale in Nalders Road, Chesham, HP5 — £480,000 • 3 bed • 1 bath • 915 ft²
2 bedroom semi-detached bungalow for sale in Asheridge Road, Chesham, HP5 — £500,000 • 2 bed • 1 bath • 834 ft²
3 bedroom detached bungalow for sale in Bois Hill, Chesham, HP5 1TB, HP5 — £800,000 • 3 bed • 2 bath • 1077 ft²
3 bedroom semi-detached bungalow for sale in Crabbe Crescent, Chesham, HP5 3DD, HP5 — £500,000 • 3 bed • 1 bath • 1038 ft²


















































































