Classic terrace with garden and garage, ideal for renovation buyers.
Three-bedroom 1930s mid-terrace with period bay window
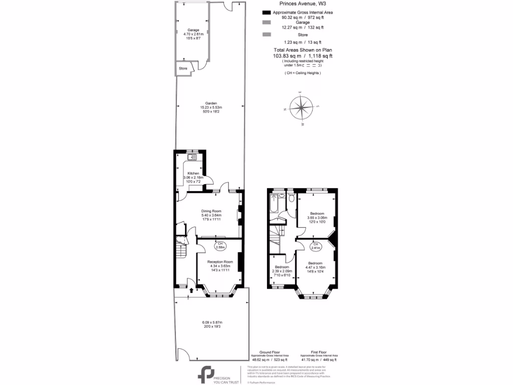
Tucked in the sought-after Gunnersbury Triangle, this 1930s mid-terrace offers clear scope for modernisation and extension (STPP). With classic bay-fronted proportions, a long 50 ft garden and rear garage, the house provides a solid framework for a contemporary family layout or investor refurbishment.
The ground floor has two reception rooms and a separate kitchen with direct garden access; upstairs are three bedrooms and one family bathroom. The property needs updating throughout, so buyers can reconfigure spaces, improve energy performance and add modern fixtures to unlock significant value.
Location is a major asset: Acton Town station (Piccadilly and District lines) is a three-minute walk, and Gunnersbury Park is within easy reach. Good local schools and fast broadband make this suitable for families or professionals seeking central-London convenience with outdoor space.
Note the sale is probate and offered chain free. Practical considerations include a single bathroom, above-average council tax banding and the requirement for renovation work. Extension opportunities exist subject to planning and party-wall approvals.
3 bedroom terraced house for sale in Princes Avenue, Acton, W3 8LS, W3 — £775,000 • 3 bed • 1 bath • 1180 ft²
3 bedroom terraced house for sale in Princes Avenue, Acton, London, W3 — £725,000 • 3 bed • 1 bath • 991 ft²
3 bedroom terraced house for sale in Gunnersbury Lane, Acton, W3 — £700,000 • 3 bed • 1 bath • 1176 ft²
3 bedroom semi-detached house for sale in Kathleen Avenue, London, W3 — £799,950 • 3 bed • 1 bath • 1092 ft²
3 bedroom house for sale in Popes Lane, Ealing, W5 — £895,000 • 3 bed • 1 bath • 932 ft²
4 bedroom end of terrace house for sale in Park Drive, W3 — £840,000 • 4 bed • 1 bath • 1345 ft²






























































