Starter home with parking, solar panels and clear scope to add value.
Chain free with owned solar panels and low running costs
Not overlooked rear garden with garden-room extension
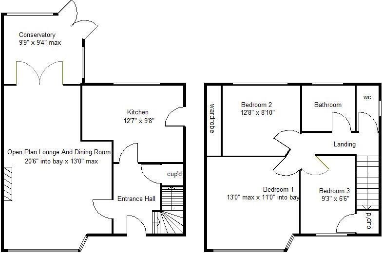
Large open-plan lounge and separate fitted breakfast kitchen
Off-street parking, side driveway and car port
Single family bathroom plus separate WC (one bathroom only)
Mid‑20th century stock; some finishes need modernisation
Area shows above-average crime and high local deprivation
Small overall footprint (approx. 794 sqft) for a three-bed
Set on a popular Balby roadway, this three-bedroom semi-detached home offers a private rear garden and a garden-room extension ideal for relaxed family living. The layout includes a large open-plan lounge/diner, fitted breakfast kitchen, and three well-proportioned bedrooms. Owned solar panels and double glazing reduce running costs and add practical value.
The property is offered chain free and benefits from off-street parking with a side driveway and car port. The plot is a decent size for the area and the rear is not overlooked, enjoying a pleasant outlook. Fast broadband and excellent mobile signal support home working and streaming.
Internally the house is solid mid‑20th century stock but will suit buyers prepared to modernise finishes. There is one main bathroom plus a separate WC; some fixtures, flooring and timber casement windows vary in age. The area has higher-than-average crime and is in a deprived local context, so purchasers should consider local services and resourcing when viewing.
This house will appeal to first-time buyers seeking a starter home with scope to add value, or investors wanting a tenanted buy-to-let with steady rental demand. Early viewing is recommended to assess potential improvements and any maintenance priorities.
3 bedroom semi-detached house for sale in Westfield Road, Balby, Doncaster, DN4 — £140,000 • 3 bed • 1 bath • 926 ft²
3 bedroom semi-detached house for sale in Dorado Drive, Balby, Doncaster, DN4 — £220,000 • 3 bed • 2 bath • 979 ft²
3 bedroom semi-detached house for sale in Green Street, Balby, DONCASTER, DN4 — £150,000 • 3 bed • 1 bath • 685 ft²
3 bedroom end of terrace house for sale in Walpole Close, Balby, Doncaster, DN4 — £130,000 • 3 bed • 1 bath • 700 ft²
3 bedroom detached house for sale in Horse Shoe Court, Balby, Doncaster, DN4 — £159,995 • 3 bed • 1 bath • 591 ft²
3 bedroom semi-detached house for sale in Heartswood Road, Bentley, Doncaster, DN5 — £200,000 • 3 bed • 2 bath • 877 ft²










































































