Chain-free Victorian terrace with garden — major refurbishment project in a central N19 location.
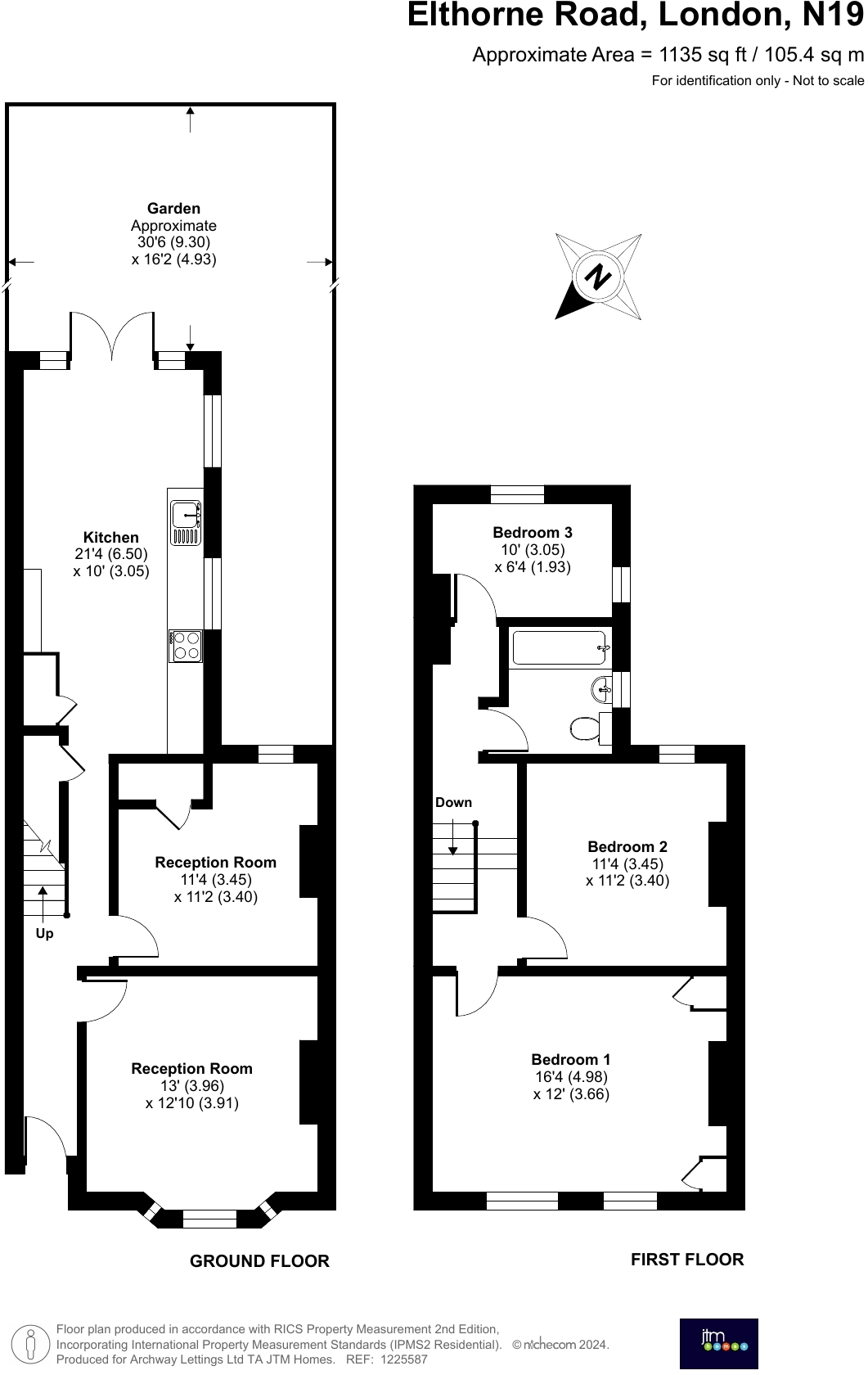
Three bedrooms with two reception rooms and long kitchen-diner
This well-proportioned three-bedroom mid-terrace offers substantial living space arranged over traditional Victorian layouts. Two reception rooms and a long kitchen-diner open to a private 30' rear garden, providing flexible family space and entertaining potential.
The house requires full refurbishment throughout, giving buyers scope to modernise and add value. Period features such as a high-ceilinged bay living room and a period fireplace provide character; the solid brick walls likely lack insulation and will benefit from efficiency upgrades despite double glazing and an EPC C rating.
The location is a key asset: moments from Archway (Northern Line), close to Holloway Road shops and Waterlow Park. Fast broadband and excellent mobile signal suit remote working, while several well-rated primary and secondary schools are nearby. Note the property is chain free and freehold.
Important considerations: the area records very high crime and above-average council tax. The house is sold requiring renovation, so budget for mechanical, electrical, heating and cosmetic works, plus possible insulation improvements. Ideal for buyers seeking a project or long-term family home in a well-connected inner-city location.
2 bedroom house for sale in Landseer Road, London, N19 — £850,000 • 2 bed • 1 bath • 1003 ft²
4 bedroom end of terrace house for sale in Hargrave Road, Archway N19 — £1,400,000 • 4 bed • 2 bath • 1486 ft²
3 bedroom flat for sale in Miranda Road, London, N19 — £695,000 • 3 bed • 1 bath • 818 ft²
3 bedroom house for sale in Landseer Road, London, N19 — £900,000 • 3 bed • 1 bath • 1139 ft²
3 bedroom terraced house for sale in Davenant Road, London, N19 — £1,200,000 • 3 bed • 2 bath • 1415 ft²
3 bedroom terraced house for sale in Thane Villas, London, N7 — £1,295,000 • 3 bed • 2 bath • 1471 ft²














































































