**Standout Features:**
- **Type:** Victorian terrace house
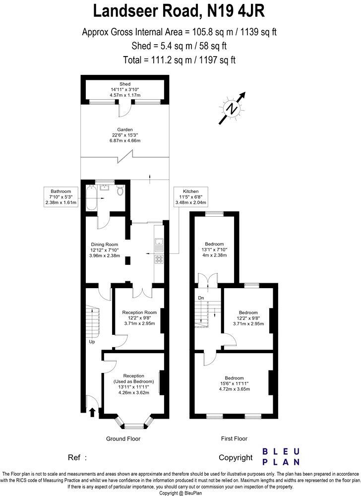
- **Size:** 3 bedrooms, 1 bathroom, approx. 1,139 sq ft
- **Location:** Landseer Road, N19 4JR
- **Exterior:** Classic brick facade with period charm
- **Interior:** Open-plan kitchen/dining, two reception rooms (one adaptable as a bedroom)
- **Garden:** Average-sized rear garden
- **Parking:** On-street parking with resident's permit
- **Transport Links:** Close to Northern line and overground stations
- **Schools:** Proximity to several "Good" rated primary and secondary schools
- **Internet:** Excellent broadband options available
**Summary:**
Discover this charming three-bedroom Victorian terrace on Landseer Road in the dynamic N19 postcode, perfect for families or investors. This property boasts an ideal blend of classic design and contemporary living, featuring spacious reception areas, a well-equipped kitchen that opens into a charming rear garden, and ample opportunities for modernisation. While the house has undergone minimal updates, it retains its character and potential for personalisation, making it a canvas for your vision of home.
Situated in an attractive, established neighbourhood with high transport accessibility and vibrant local amenities—including parks, cafes, and shops—this property assures convenience and a community feel. Although the area experiences higher crime rates and comes with a small plot size, the home's unique aesthetic paired with its functional layout provide an inviting setting for both relaxation and entertaining. This property is a rare blend of space, style, and potential, making it a remarkable opportunity that won't last long!
2 bedroom house for sale in Landseer Road, London, N19 — £850,000 • 2 bed • 1 bath • 1003 ft²
3 bedroom terraced house for sale in Landseer Road, Islington, N19 — £1,100,000 • 3 bed • 2 bath • 1245 ft²
4 bedroom house for sale in Eburne Road, London, N7 — £1,300,000 • 4 bed • 3 bath • 1804 ft²
4 bedroom terraced house for sale in Hargrave Road, Archway, N19 — £1,500,000 • 4 bed • 1 bath • 1800 ft²
4 bedroom terraced house for sale in Northchurch Road,
Islington, N1 — £2,950,000 • 4 bed • 3 bath • 2708 ft²
3 bedroom terraced house for sale in Davenant Road, London, N19 — £1,200,000 • 3 bed • 2 bath • 1415 ft²






























































