Charming period home with large garden and outbuilding, ideal for sympathetic updating.
- Grade II listed detached stone house dating from the 1760s
- Large private garden and substantial brick outbuilding with power and light
- Hive-controlled heating, underfloor heating in some ground-floor rooms
- Wood-burning stove and exposed beams retain strong period character
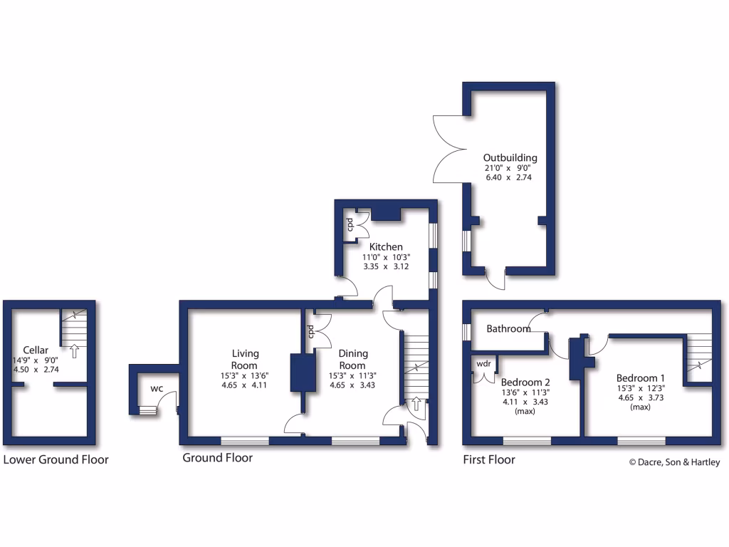
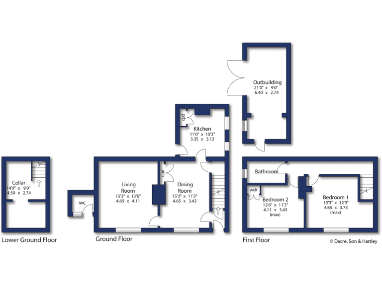
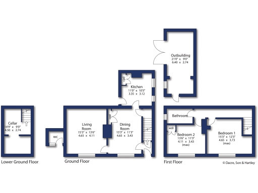
- Generous cellar split into two sections with development potential (subject to consent)
- Stone walls likely uninsulated — further insulation work may be needed
- On-street parking only; no private driveway
- Area shows high deprivation and above-average crime rates
A rare Grade II detached stone cottage from the 1760s, set on a large tucked-away plot within easy walking distance of Morley town centre. The house combines original features — exposed beams, thick stone walls and a substantial brick outbuilding — with practical updates such as Hive-controlled heating, underfloor heating to some ground-floor rooms and a wood-burning stove.
The accommodation is compact but well laid out: two double bedrooms on the first floor, two reception rooms and a cellar split into two useful storage areas with scope for conversion subject to listed-building consents. The generous garden and brick outbuilding create flexible outdoor and hobby space for families or someone wanting home-working or a workshop.
Important considerations are factual and should be weighed before viewing. The Grade II listing will restrict alterations and will complicate any significant redevelopment. The stone walls are likely uninsulated, so further insulation works may be needed to improve energy efficiency. Parking is on-street only. The immediate area scores as very deprived and recorded crime is above average, which may be relevant for some buyers.
This property suits a buyer who values period character and privacy and is comfortable with sympathetic updating rather than a full modern rebuild. It offers clear potential to enhance storage, insulation and energy performance while retaining historic charm.
3 bedroom cottage for sale in Low Moor Side, New Farnley, LEEDS, LS12 — £425,000 • 3 bed • 2 bath • 621 ft²
3 bedroom cottage for sale in High Street, Heckmondwike, WF16 — £249,995 • 3 bed • 1 bath • 1208 ft²
2 bedroom terraced house for sale in White Lane, Odsal, Bradford, BD6 — £139,995 • 2 bed • 1 bath • 624 ft²
2 bedroom cottage for sale in Tan House Court, Boy Lane, Bierley, BD4 — £190,000 • 2 bed • 1 bath • 589 ft²
3 bedroom character property for sale in Brookroyd Lane, Batley, WF17 — £400,000 • 3 bed • 2 bath
2 bedroom terraced house for sale in 2 Apperley Lane, Rawdon, Leeds, LS19 6DA, LS19 — £300,000 • 2 bed • 2 bath • 1222 ft²














































































































