Spacious 4-bed family home with garden studio and multiple parking spaces.
- Extended Edwardian semi with three-storey layout
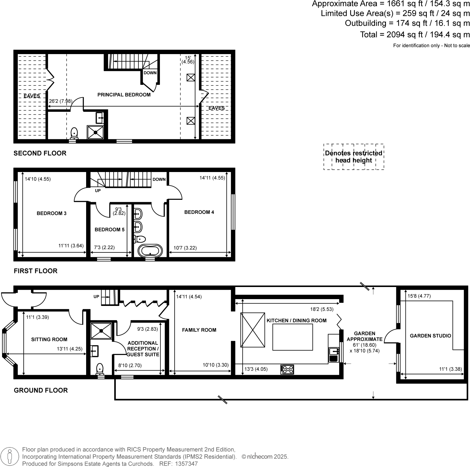
This extended Edwardian semi offers flexible family living across three floors, with four bedrooms and three bathrooms (two en suite). A bright open-plan kitchen/dining extension, roof lantern and bi-fold doors connect the interior to a landscaped rear garden and separate garden studio — ideal for home working, play or entertaining. The ground-floor en suite room provides practical guest or multi-generational use.Second-floor principal bedroom with en suite provides a private retreat, while two further reception rooms on the ground floor give families space to separate living and play areas. Off-street parking for several cars and gated side access add everyday convenience and kerb appeal.The property is Freehold, roughly 1,434 sqft internally, in good decorative order but built c.1900–1929 in solid brick. There is no flood risk, broadband and mobile signals are strong, and local schools and commuter links suit growing families. Buyers should note some practical issues: the original solid walls are assumed uninsulated, double glazing install dates are unknown, and parts of the top floor may have restricted head height in the eaves. Council tax is above average, and modest updating or insulation work could be required to improve energy performance.Despite these considerations, the house offers immediate family-ready accommodation with clear potential for further modernisation or garden enhancement to increase value and comfort.
3 bedroom semi-detached house for sale in Avenue Road, Kingston Upon Thames, KT1 — £825,000 • 3 bed • 1 bath • 1166 ft²
3 bedroom semi-detached house for sale in Mill Street, Kingston Upon Thames, KT1 — £860,000 • 3 bed • 1 bath • 1079 ft²
4 bedroom semi-detached house for sale in Eastbury Road, Kingston Upon Thames, KT2 — £1,300,000 • 4 bed • 2 bath • 1186 ft²
3 bedroom semi-detached house for sale in Rowlls Road, Kingston Upon Thames, KT1 — £895,000 • 3 bed • 3 bath • 1500 ft²
3 bedroom semi-detached house for sale in Avenue Road, Kingston Upon Thames, KT1 — £725,000 • 3 bed • 1 bath • 932 ft²
4 bedroom semi-detached house for sale in Dawson Road, Kingston Upon Thames, KT1 — £869,000 • 4 bed • 2 bath • 1295 ft²














































































