**Key Features:**
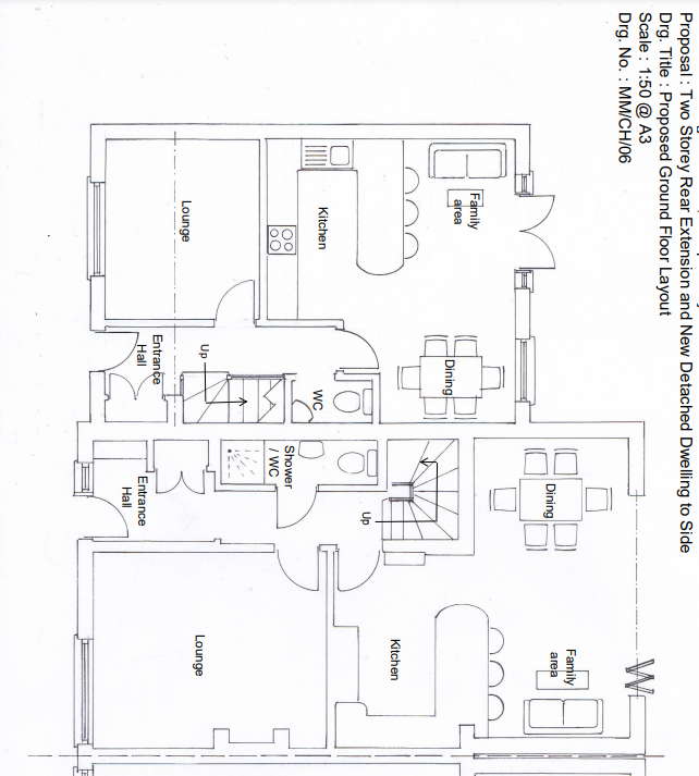
- **Development Opportunity:** Full planning approved (now lapsed) for a new three-bedroom house and extension of the existing property.
- **Location:** Quiet village setting, steps away from local shops, pubs, and beautiful countryside.
- **Parking:** Large driveway for multiple vehicles.
- **Garden:** Spacious rear garden with potential for building or extending.
- **Amenities:** Low crime area; within the catchment for good schools.
This charming semi-detached 2-bedroom home on Buckingham Road offers an exciting development opportunity in the sought-after village of Steeple Claydon. With planning permission previously secured (which now has lapsed) to extend the current layout into a three-bedroom home and build an additional three-bedroom property, this is perfect for investors or families looking for expansion potential.
The property features a cozy living room with an inviting open fireplace, a practical kitchen with ample storage, and two spacious double bedrooms. The ground floor also includes a handy guest cloakroom. Step outside to a generous garden space that wraps around the side, ideal for future renovations or family gatherings.
Enjoy a relaxed lifestyle with local amenities within walking distance—including shops, healthcare, and schools—all while being surrounded by picturesque countryside. This affordable freehold property offers both comfort and potential, making it an appealing choice for first-time buyers or those looking to invest in a vibrant community. Don’t miss out on this rare opportunity!
2 bedroom semi-detached house for sale in Buckingham Road, Steeple Claydon, MK18 — £400,000 • 2 bed • 2 bath • 700 ft²
2 bedroom semi-detached house for sale in Buckingham Road, Steeple Claydon, Buckingham, MK18 — £390,000 • 2 bed • 1 bath • 700 ft²
2 bedroom semi-detached house for sale in Vicarage Lane, Buckingham, MK18 — £300,000 • 2 bed • 1 bath • 686 ft²
3 bedroom semi-detached house for sale in Buckingham Road, Steeple Claydon, Buckingham, MK18 — £425,000 • 3 bed • 1 bath • 890 ft²
2 bedroom end of terrace house for sale in Sandholme, Steeple Claydon, Buckingham, MK18 — £295,000 • 2 bed • 2 bath • 891 ft²
Land for sale in High Street South, Stewkley, LU7 — £350,000 • 4 bed • 3 bath • 1077 ft²


















































