**Standout Features:**
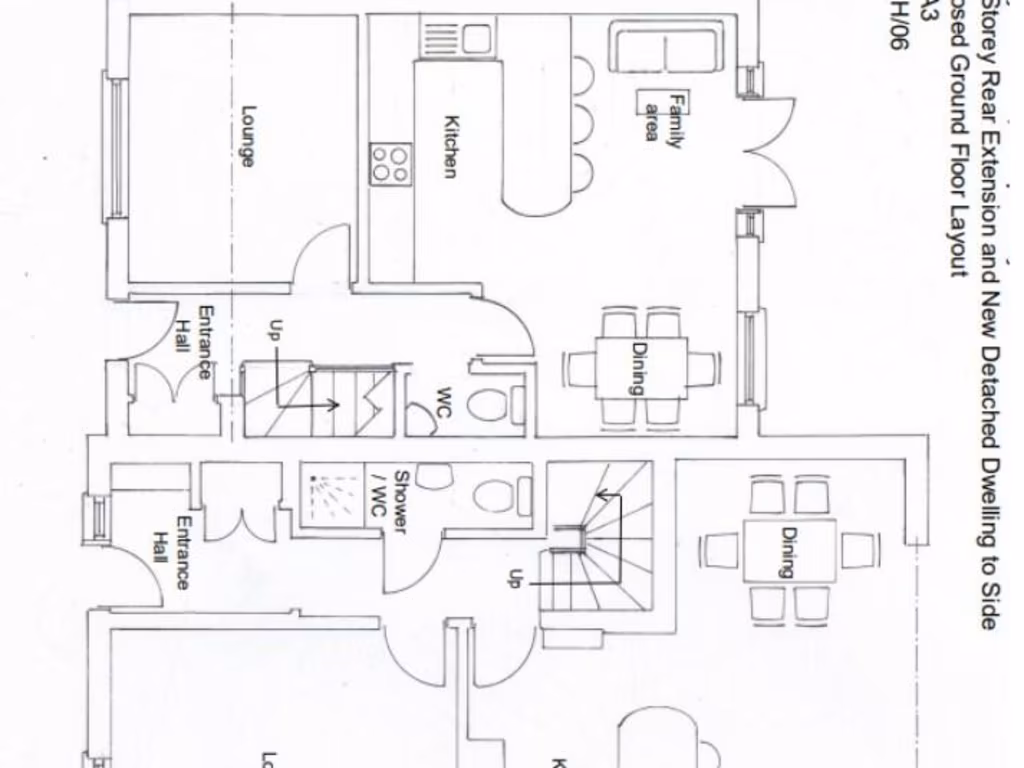
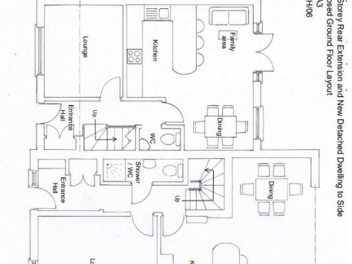
- Great development opportunity with planning permission for extension and new build.
- Large plot in a popular village location.
- Current two-bedroom semi-detached property.
- Approval for a new three-bedroom dwelling alongside the existing home.
- Off-street parking and garden space.
**Potential Downsides:**
- Requires updates to fit modern styles (kitchen from the 1980s, basic bathroom).
- Broadband speeds are noted to be slow.
This semi-detached 1930s property is a rare opportunity for savvy investors or families looking to expand a home in an increasingly popular village. With full planning permission granted for a two-storey extension, you have the potential to transform the existing two-bedroom layout into a spacious three-bedroom dwelling featuring an open-plan kitchen/dining area and an en-suite master bedroom. Additionally, a new three-bed home can be erected on the generous side plot, maximizing your investment potential.
The property currently enjoys a bright and inviting interior, featuring a cozy lounge with an open fireplace that adds charm, alongside functional kitchen space waiting for your personal touch. Outside, the extensive driveway provides ample parking for multiple vehicles, while the wrap-around garden space is perfect for outdoor entertaining or gardening projects.
Strategically located in a small town fringe area with low crime rates and access to good local schools, this home not only offers a comfortable living environment but also presents an engaging canvas for future renovations. Don’t miss out—this property is chain-free and viewing is strongly advised before this unique opportunity slips away!
2 bedroom semi-detached house for sale in Buckingham Road, Steeple Claydon, MK18 — £400,000 • 2 bed • 2 bath • 700 ft²
2 bedroom semi-detached house for sale in Buckingham Road, Steeple Claydon, MK18 — £390,000 • 2 bed • 1 bath • 700 ft²
3 bedroom semi-detached house for sale in Vicarage Close, Steeple Claydon, BUCKINGHAM, MK18 — £300,000 • 3 bed • 1 bath • 761 ft²
3 bedroom semi-detached house for sale in Buckingham Road, Steeple Claydon, Buckingham, MK18 — £425,000 • 3 bed • 1 bath • 890 ft²
2 bedroom detached house for sale in Addison Road, Steeple Claydon, BUCKINGHAM, MK18 — £350,000 • 2 bed • 1 bath • 679 ft²
2 bedroom semi-detached house for sale in Nash Road, Thornborough , MK18 — £315,000 • 2 bed • 1 bath • 644 ft²






































































