RM11 3JE - 5 bedroom detached house for sale in Ernest Road, Hornchurc…

View on Property Piper

5 bedroom detached house for sale in Ernest Road, Hornchurch, RM11

Summary - 15 Ernest Road RM11 3JE

5 bed 3 bath Detached

### Standout Features
- **Five Double Bedrooms and Three Bathrooms**: Spacious accommodations for families or guests.
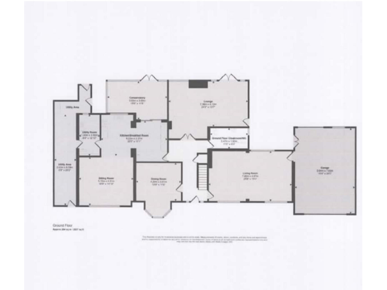
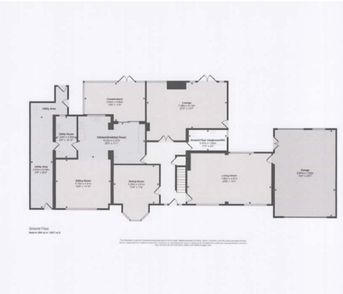
- **Five Reception Rooms**: Including a grand lounge and conservatory opening to the garden.
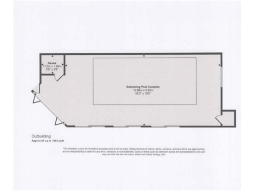
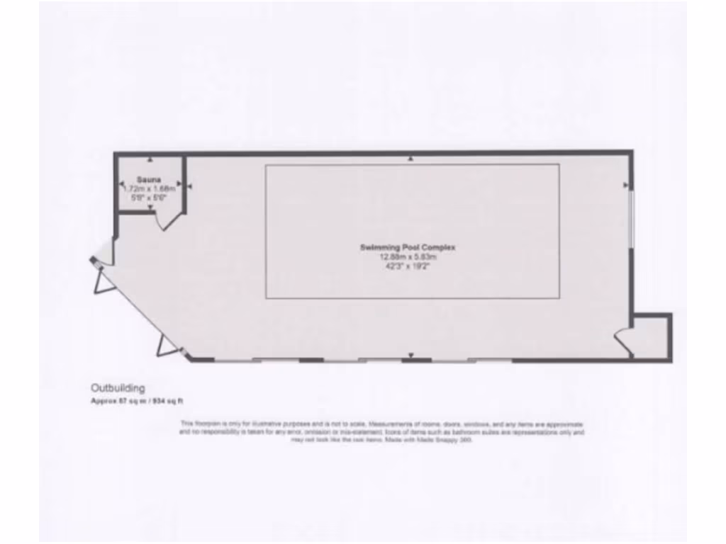
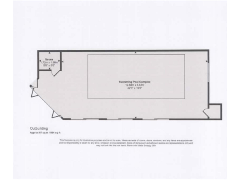
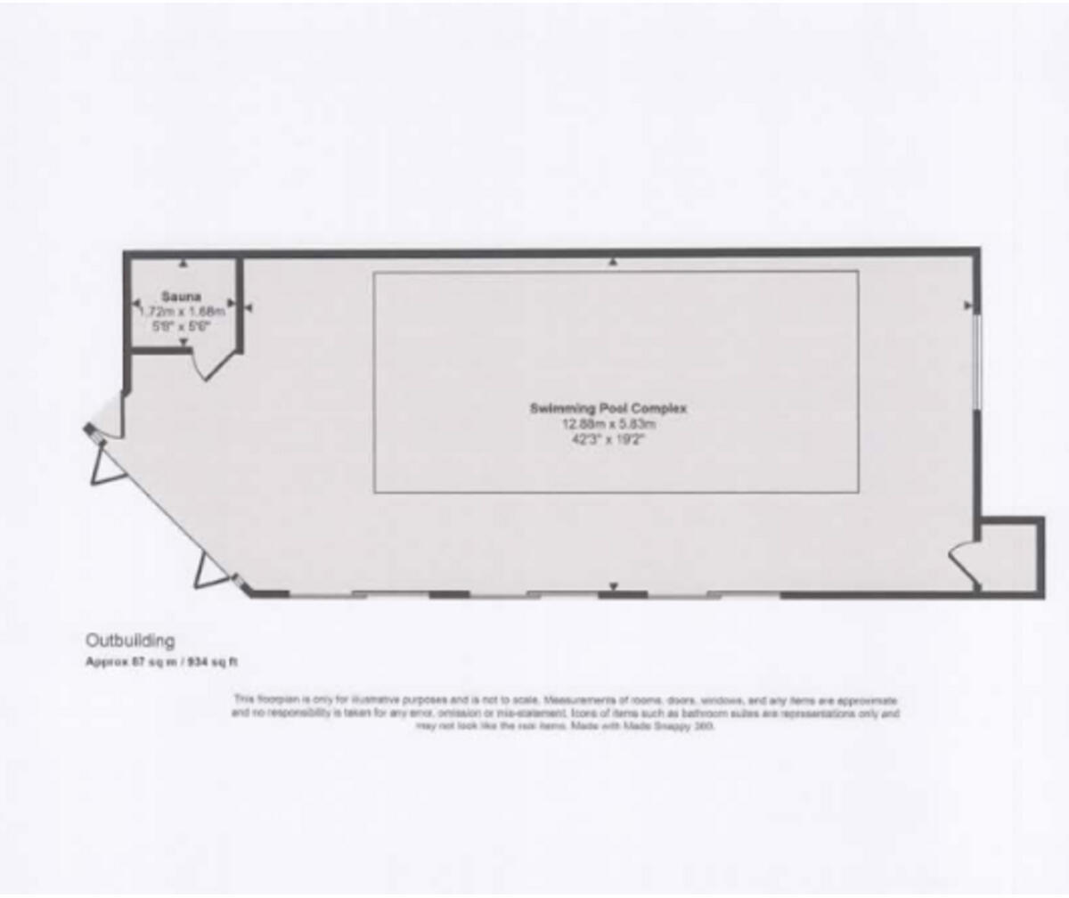
- **Indoor Pool Complex**: Spectacular 50' x 20' area featuring a pool and patio doors.
- **Gated Road Frontage**: Nearly 100' of prestigious access with ample parking.
- **Double Garage**: Significant space (26' x 19') for storage or vehicles.
- **Renovation Potential**: Great opportunity for improvements or a complete rebuild, pending planning consent.
- **Chain-Free Sale**: Immediate availability for interested buyers.

### Summary
Nestled in the highly sought-after Emerson Park area, this impressive detached house on Ernest Road offers around 5,500 sq ft of extensive living space, perfect for families seeking comfort and style. With five expansive double bedrooms, including a master suite complemented by a dressing room and en-suite, and three bathrooms, this home caters to all your needs. Rejuvenate in five spacious reception rooms, including a notable lounge and a bright conservatory that merges indoor and outdoor living harmoniously.

Unique to this property, an indoor pool complex invites year-round enjoyment and entertainment, making it an ideal retreat. The sprawling gated driveway leads to a sizable double garage, accommodating multiple vehicles with ease. While the home is move-in ready, it presents substantial potential for renovations, extensions, or even a complete rebuild—perfect for the buyer looking to tailor their new home.

Situated in an affluent neighborhood with low crime rates, you'll benefit from proximity to top-rated schools like Nelmes Primary and Emerson Park Academy. Don’t miss out on this exceptional opportunity—properties in this desirable locale are rare and won’t stay on the market long. Explore the possibilities and secure your future in this remarkable family abode.

Property Details

Image Descriptions

Floorplan Description

Rooms

Textual Property Features

Detected Visual Features

EPC Details

Nearby Schools

Nearest Bars And Restaurants

,,,,}

Nearest General Shops

,,}

Nearest Grocery shops

,,}

Nearest Supermarkets

,,}

Nearest Religious buildings

,,}

Nearest Medical buildings

,,,}

Nearest Airports

,}

Nearest Leisure Facilities

,,,,}

Nearest Tourist attractions

,,}

Nearest Train stations

,,,,}

Nearest Bus stations and stops

,,,,}

Nearest Hotels

,,}

Tags

Local Market Stats

AirBnB Data

Similar Properties

Meta

High Res Images

Compatible Images

Low res Images

Thumbnails

Raw Images

High Res Floorplan Images

Compatible Floorplan Images

Low res Floorplan Images

FloorplanImages Thumbnail

Raw Floorplan Images