PH2 8AH - 6 bed spacious period townhouse in Perth And North Perthshi…

View on Property Piper

6 bedroom terraced house for sale in Marshall Place, Perth, PH2

Summary - Marshall Place, Perth, PH2 PH2 8AH

6 bed 2 bath Terraced

Versatile six-bedroom home with park views and strong period character.
6 bedrooms plus dedicated study and flexible attic space
South Inch parkland views; central, walkable city location
Spacious reception rooms with period sash windows and cornicing
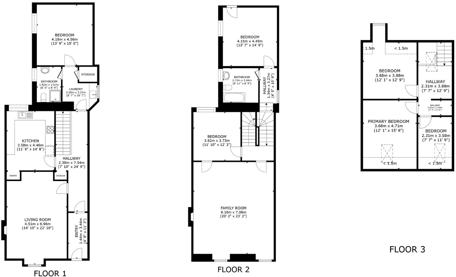
Approx 2,702 sq ft over three floors; family-friendly layout
EPC rating F — expect energy inefficiency and upgrade costs
All services/appliances not tested; buyer to verify condition
Council tax described as expensive — factor in running costs
Area classified as Very Deprived; 'Hampered aspiration' local profile
This attractive mid-terraced Georgian/Victorian townhouse offers flexible accommodation across three floors, ideal for a growing family seeking space in a central city location. The house features formal reception rooms, a well-equipped kitchen, six bedrooms and a dedicated study, providing room for home working, guests and family life. Large sash windows and high ceilings deliver strong natural light and period character throughout.

The property sits directly overlooking South Inch parkland, giving a peaceful outlook and easy access to green space while remaining close to shops, restaurants and transport links. The layout includes a central hall, drawing room, formal dining room, and attic-level bedrooms that enhance privacy and adaptability. Total internal area is approximately 2,702 sq ft.

Buyers should note important practical considerations: the EPC rating is F, indicating likely energy inefficiency and potential upgrade costs; all services and appliances have not been tested; council tax is described as expensive. The wider area classifications include ‘Hampered aspiration’ and ‘Constrained renters’ with a high level of local deprivation, which may affect long-term value and tenant demand for investors.

Overall, the house is a spacious, characterful opportunity for families or professionals who prioritise central location, versatile living space and period features, and who are prepared to invest in energy improvements and modernisation where required.

Property Details

Image Descriptions

Floorplan Description

Rooms

Textual Property Features

Target Audience

AI Tags

Detected Visual Features

Nearest Bars And Restaurants

,,,,}

Nearest General Shops

,,}

Nearest Grocery shops

,,}

Nearest Supermarkets

,,}

Nearest Religious buildings

,,}

Nearest Medical buildings

,,,}

Nearest Leisure Facilities

,,,,}

Nearest Tourist attractions

,,}

Nearest Train stations

,,,,}

Nearest Bus stations and stops

,,,,}

Nearest Hotels

,,}

Tags

Local Market Stats

AirBnB Data

Similar Properties

Meta

High Res Images

Compatible Images

Low res Images

Thumbnails

Raw Images

High Res Floorplan Images

Compatible Floorplan Images

Low res Floorplan Images

FloorplanImages Thumbnail

Raw Floorplan Images