Characterful ground-floor flat with private garden and easy Highgate access.
Two double bedrooms with bay windows and high ceilings
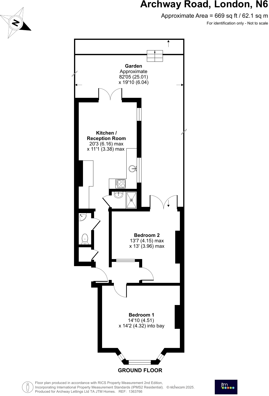
Set within a handsome Victorian conversion on Archway Road, this ground-floor two-bedroom apartment blends period character with contemporary fittings. Both bedrooms are doubles with large bay windows; high ceilings and decorative cornicing give the living spaces a light, airy feel. The compact modern kitchen features integrated appliances and efficient storage, ideal for everyday cooking and entertaining.
A private section of the rear garden is a standout — paved patio and lawn provide outdoor space rare for a flat of this size. The apartment comes with a share of freehold and a long effective lease (about 110 years), offering ownership security. Excellent mobile signal and fast broadband support home working and streaming.
Practical details to note: parking is communal and non‑allocated, so space is not guaranteed. The building is solid-brick Victorian construction and likely lacks modern cavity insulation, so there is potential to improve energy performance; the current EPC is D. The property is on the ground floor which gives easy access but may reduce privacy for some buyers. Local crime levels are above average for the area and should be considered alongside the many nearby amenities and strong schools.
At 669 sq ft and priced at £565,000 in N6 close to Highgate (Northern Line), this apartment suits first-time buyers seeking character, an outdoor space, and good transport links, with scope to add value by improving energy efficiency.
2 bedroom flat for sale in Milton Avenue, London, N6 — £625,000 • 2 bed • 1 bath • 750 ft²
2 bedroom flat for sale in Archway Road, Highgate, N6 — £475,000 • 2 bed • 1 bath • 783 ft²
2 bedroom flat for sale in Hornsey Lane Gardens, Highgate, N6 — £730,000 • 2 bed • 2 bath • 803 ft²
2 bedroom flat for sale in Marlborough Road, N19 — £460,000 • 2 bed • 1 bath • 598 ft²
2 bedroom flat for sale in Archway Road, London, N6 — £400,000 • 2 bed • 1 bath • 506 ft²
2 bedroom apartment for sale in St Johns Way, Archway, London, N19 — £465,000 • 2 bed • 1 bath • 657 ft²


















































