**Standout Features:**
- Large self-build plot suitable for a 4-bedroom detached family home
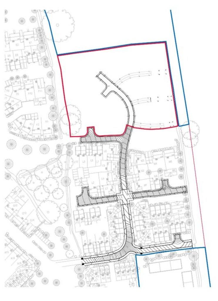
- Outline planning consent granted (Reference: 20/00486/MAJ)
- Fully serviced with all main utilities installed at the boundary
- Located on the edge of Dartmoor, offering scenic views and tranquility
- Excellent mobile signal and fast broadband speeds
- Community with low crime rates and affluent surroundings
**Concise Summary:**
Unlock your dream home potential with this expansive self-build plot at Bradley Bends in Bovey Tracey. Spanning 8,396 sq ft, this prime residential land is perfectly suited for a four-bedroom detached house, with outline planning consent already granted. Enjoy a serene setting at the edge of Dartmoor National Park, detailed with lush views and a peaceful community atmosphere.
The plot is fully serviced with mains utilities and is ready for construction following the required planning application for your unique design. With close proximity to local amenities and reputable schools, this location harmoniously combines rural charm with modern convenience.
With construction to commence within two years of obtaining detailed planning consent, this is a rare opportunity for those looking to invest in a desirable neighborhood. Don’t miss out—your perfect family home awaits!
Land for sale in Self Build Plot 4, Bradley Bends, Bovey Tracey, TQ13 — £180,000 • 3 bed • 1 bath • 8396 ft²
Land for sale in Self Build Plot 7, Bradley Bends, Bovey Tracey, TQ13 — £185,000 • 5 bed • 1 bath • 8396 ft²
Land for sale in Self Build Plot 6, Bradley Bends, Bovey Tracey, TQ13 — £185,000 • 5 bed • 1 bath • 8396 ft²
Plot for sale in SELF BUILD PLOTS, Bradley Barton, Newton Abbot, Devon, TQ12 — £85,000 • 1 bed • 1 bath • 1130 ft²
Property for sale in Self Build Plot 30, 2 bed, Elm Park, Exeter, EX2 — £120,000 • 1 bed • 1 bath
Land for sale in Doddiscombsleigh, Exeter, EX6 — £295,000 • 5 bed • 2 bath • 9583 ft²














