**Standout Features:**
- **Location:** Self Build Plot 4, Bradley Bends, Bovey Tracey, TQ13
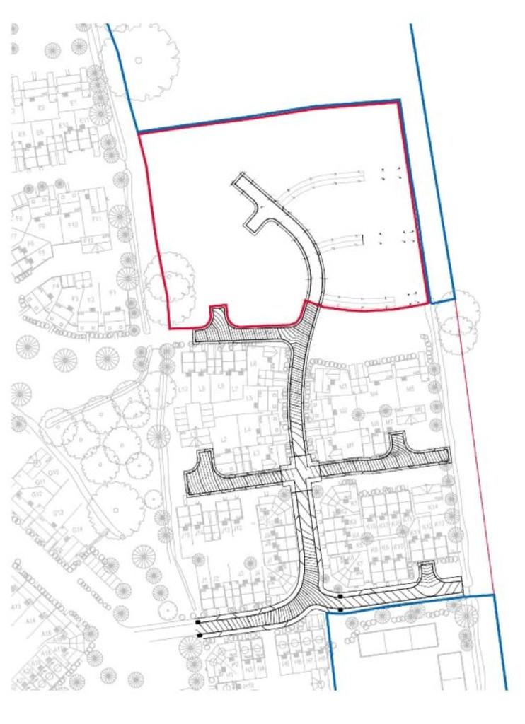
- **Size:** Expansive plot measuring 8,396 sq ft
- **Planning Permissions:** Outline consent from Teignbridge District Council (Ref: 20/00486/MAJ), purchaser to apply for detailed planning
- **Accessibility:** Mains utilities (water, electricity, gas, drainage, broadband) installed at plot boundary
- **Future Development Potential:** Ideal for a three-bedroom detached family home; flexibility in design
- **Environment:** Scenic countryside setting near Dartmoor National Park
- **Community:** Located in a family-friendly rural area with low crime rates
**Summary:**
Discover a rare opportunity to create your dream home with this generous self-build plot nestled on the edge of Dartmoor National Park. Spanning 8,396 square feet, this well-positioned land is perfect for a spacious three-bedroom detached family home, allowing for personal touches in design under the established outline planning consent from Teignbridge District Council.
The plot is serviced with all essential utilities and benefits from a peaceful, picturesque setting with scenic rural views for an idyllic lifestyle. While the surrounding area boasts a sense of community, it retains a serene feel, making it perfect for families or those seeking tranquility. With excellent mobile signal and fast broadband speeds, you will enjoy modern conveniences in a rural lifestyle.
Please note, potential buyers will need to act swiftly to secure this plot, as the responsibility to apply for detailed planning permission lies with you, and construction must commence within two years of approval. Experience the ultimate in rural living while building a custom space just for you!
Land for sale in Self Build Plot 10, Bradley Bends, Bovey Tracey, TQ13 — £225,000 • 4 bed • 1 bath • 8396 ft²
Land for sale in Self Build Plot 7, Bradley Bends, Bovey Tracey, TQ13 — £185,000 • 5 bed • 1 bath • 8396 ft²
Land for sale in Self Build Plot 6, Bradley Bends, Bovey Tracey, TQ13 — £185,000 • 5 bed • 1 bath • 8396 ft²
Property for sale in Self Build Plot 30, 2 bed, Elm Park, Exeter, EX2 — £120,000 • 1 bed • 1 bath
Property for sale in Self Build Plot 29, 3 bed, Elm Park, Exeter, EX2 — £160,000 • 1 bed • 1 bath
Land for sale in Doddiscombsleigh, Exeter, EX6 — £295,000 • 5 bed • 2 bath • 9583 ft²














