Secluded 1.63 acre plot minutes from Bucklers Hard marina and river.
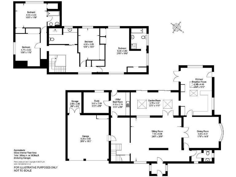
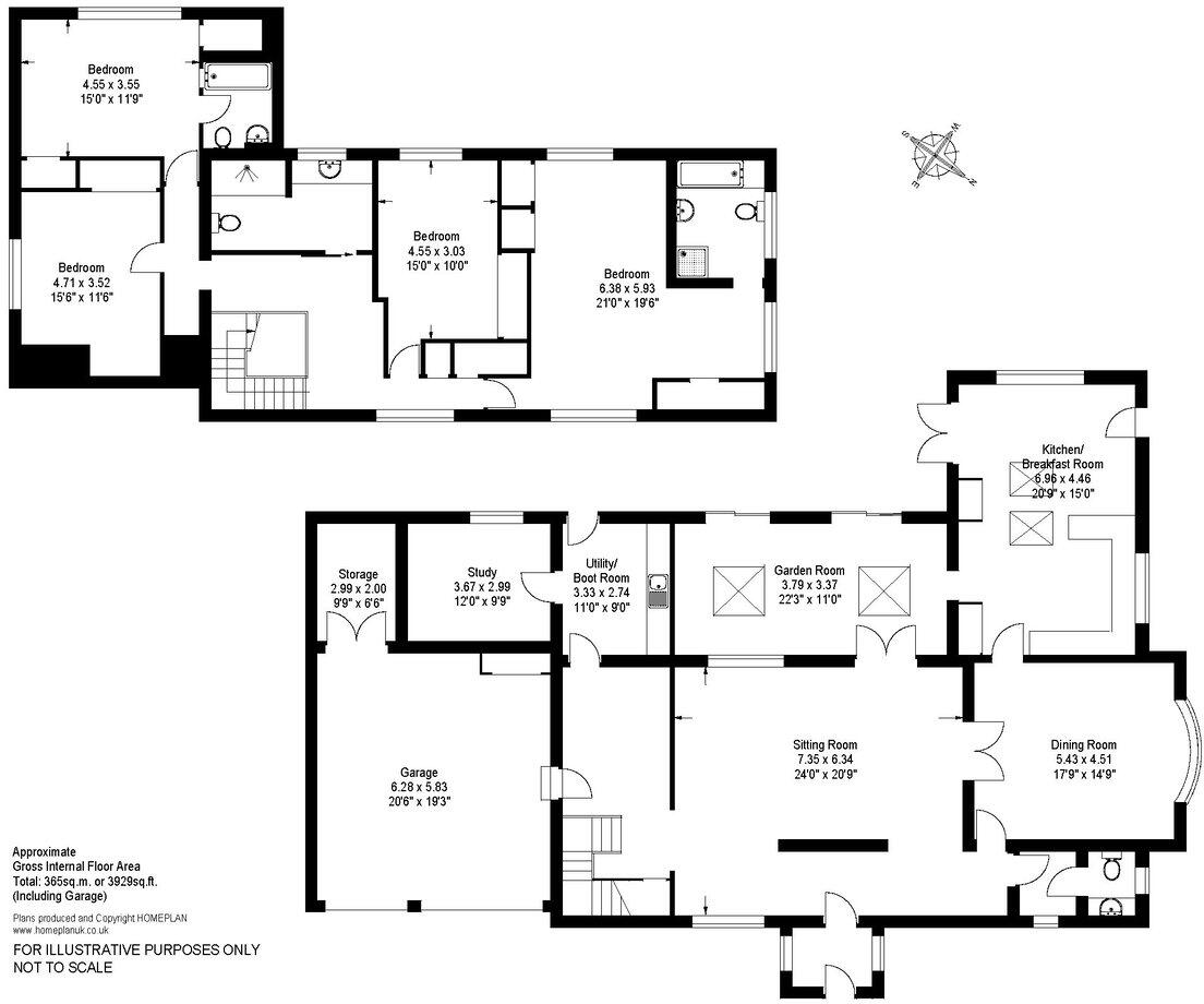
Nearly 4,000 sq ft of flexible family accommodation
Set within 1.63 acres of mature, landscaped grounds on the edge of the New Forest National Park, this substantial four-bedroom detached house offers an exceptional country setting close to Bucklers Hard marina and the Beaulieu River. Principal rooms are large and well proportioned, including a 24' x 20' sitting room with a prominent fireplace, a bright garden room and a generous kitchen/breakfast room with ridge-height ceilings. Outside there are formal lawns, a swimming pool with a timber pool building (shower, WC and mower garage) and an adjoining double garage.
The house extends to nearly 4,000 sq ft and is offered freehold with no onward chain — a rare opportunity for a family seeking privacy and space in a highly sought-after rural location. The grounds provide scope for gardens, play areas or further landscaping, and the property sits back from a quiet lane behind a mature hedge for good seclusion. Local amenities include riverside sailing, countryside walks and a nearby pub and restaurant; Brockenhurst and Lymington are within convenient driving distance.
Practical features include solar PV with Tesla battery storage and an air source heat pump, plus mains electricity and water. The property has private drainage via a septic tank (sole use) and an attached double garage with driveway parking. Broadband and mobile coverage may vary locally; records note both ‘slow’ speeds and an Ofcom entry showing up to 62 Mbps available.
Important considerations: the house now requires renovation and updating throughout, with scope to re-model interiors to modern standards. Some construction details are dated (brick elevations, tile roof, cavity wall without assumed insulation) and the council tax band is high. Buyers should note mixed records on heating sources (oil boiler referenced in documents) and confirm services and running costs, septic tank condition, and insulation upgrades before purchase.
6 bedroom detached house for sale in Bucklers Hard, Beaulieu, Brockenhurst, SO42 — £3,750,000 • 6 bed • 4 bath • 5000 ft²
6 bedroom detached house for sale in Dock Lane, Beaulieu, Brockenhurst, SO42 — £2,750,000 • 6 bed • 3 bath • 3430 ft²
6 bedroom detached house for sale in Setley, Brockenhurst , SO42 — £2,995,000 • 6 bed • 5 bath • 4480 ft²
4 bedroom semi-detached house for sale in Bucklers Hard, Beaulieu, Brockenhurst, SO42 — £1,775,000 • 4 bed • 3 bath • 2000 ft²
6 bedroom detached house for sale in Exbury Road, Beaulieu, Brockenhurst, SO42 — £2,650,000 • 6 bed • 4 bath • 3372 ft²
6 bedroom detached house for sale in Rollestone Road, Holbury, Southampton, SO45 — £1,500,000 • 6 bed • 1 bath • 5916 ft²


























































