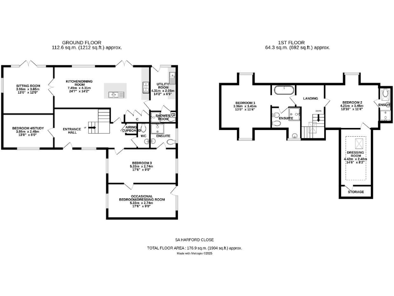
**Standout Features:**
- 4-bedroom detached house with modern chalet bungalow design
- 3 en-suite bedrooms, plus a versatile 4th bedroom/study
- Spacious kitchen/dining area and separate utility room
- Light-filled living room with patio doors leading to the garden
- Private, south-facing rear garden ideal for entertaining
- Ample driveway parking for multiple vehicles
- Potential for annexe conversion
- No forward chain for quick purchase
- Located in a quiet cul-de-sac close to local amenities and excellent schools
This beautifully presented detached home is a rare find nestled in a tranquil cul-de-sac, offering a perfect blend of modern comfort and versatility. With four well-proportioned bedrooms, including three with luxurious en-suite facilities, this property is ideal for families or those seeking adaptable living spaces. The airy kitchen and dining room, featuring a contemporary design with sliding glass doors, seamlessly connects to a private south-facing garden, making it an entertainer's dream. The outdoor space boasts a covered deck and ample room for relaxation, ensuring every gathering is memorable.
In addition, the layout allows for flexible use, providing the potential for an annexe—perfect for extended family or rental opportunities. With driveway parking accommodating several vehicles and no chain for hassle-free purchasing, this property checks all the boxes for those looking to enjoy a serene lifestyle near vibrant Lymington. Don’t miss your chance to view this exceptional home where comfort and potential come together harmoniously—ideal for your family's future!
3 bedroom detached house for sale in Haglane Copse, Pennington, Lymington, SO41 — £625,000 • 3 bed • 1 bath • 1992 ft²
4 bedroom bungalow for sale in North Greenlands, Pennington, Lymington, New Milton, SO41 — £865,000 • 4 bed • 3 bath • 1783 ft²
4 bedroom link detached house for sale in Marlborough Place, Lymington, SO41 — £675,000 • 4 bed • 3 bath • 1532 ft²
3 bedroom detached house for sale in Haglane Copse, Pennington, Lymington, SO41 — £549,950 • 3 bed • 2 bath • 1576 ft²
4 bedroom bungalow for sale in Dudley Avenue, Hordle, Lymington, Hampshire, SO41 — £735,000 • 4 bed • 3 bath • 2036 ft²
4 bedroom detached house for sale in North Close, Lymington, SO41 — £750,000 • 4 bed • 2 bath • 1804 ft²






























































































