**Standout Features:**
- No forward chain; ideal for quick acquisition
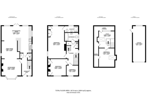
- Spacious 1930s detached house with versatile layout
- Open plan kitchen/dining with access to landscaped garden
- Generous master bedroom with en-suite and built-in storage
- Four bedrooms total with a designated study area
- Extensive driveway parking and electrically-operated garage
- Close proximity (5 min walk) to Lymington High Street and amenities
**Concise Summary:**
Discover your serene retreat in this beautifully presented detached home, ideally located just steps from the vibrant market town of Lymington. With no forward chain, this property offers a rare opportunity for both families and investors. The heart of the home features a spacious open plan kitchen/dining area that flows seamlessly into a landscaped rear garden, perfect for outdoor entertainment. Inside, the inviting sitting room boasts a charming box bay window and a working fireplace, leading to a cozy family room. The expansive master suite with en-suite shower complements three additional bedrooms and a flexible study area on the second floor, making this home suitable for remote working or schooling.
While expertly designed for modern living, prospective buyers should note the steep council tax and potential future maintenance. Nevertheless, with nearby “Good” and “Outstanding” Ofsted-rated schools and access to the breathtaking landscapes of the New Forest National Park, this property is an exceptional find for those seeking a family-friendly environment combined with local charm. Enjoy connectivity with fast broadband and the convenience of nearby transport links, making the picturesque life of Lymington truly yours. Act fast—homes like this don’t come around often!
4 bedroom link detached house for sale in Marlborough Place, Lymington, SO41 — £675,000 • 4 bed • 3 bath • 1532 ft²
4 bedroom detached house for sale in Harford Close, Pennington, Lymington, SO41 — £750,000 • 4 bed • 4 bath • 1904 ft²
4 bedroom detached house for sale in Paddock Gardens, Lymington, SO41 — £600,000 • 4 bed • 3 bath • 1357 ft²
3 bedroom semi-detached house for sale in Woodley Gardens, Lymington, SO41 — £485,000 • 3 bed • 2 bath • 984 ft²
4 bedroom detached house for sale in Belmore Lane, Lymington, Hampshire, SO41 — £1,249,000 • 4 bed • 3 bath • 2152 ft²
4 bedroom detached house for sale in Belmore Road, Lymington, Hampshire, SO41 — £850,000 • 4 bed • 1 bath • 1672 ft²






















































































































