Compact, low-maintenance home with balcony and communal roof terrace.
Second-floor apartment with lift access and allocated parking
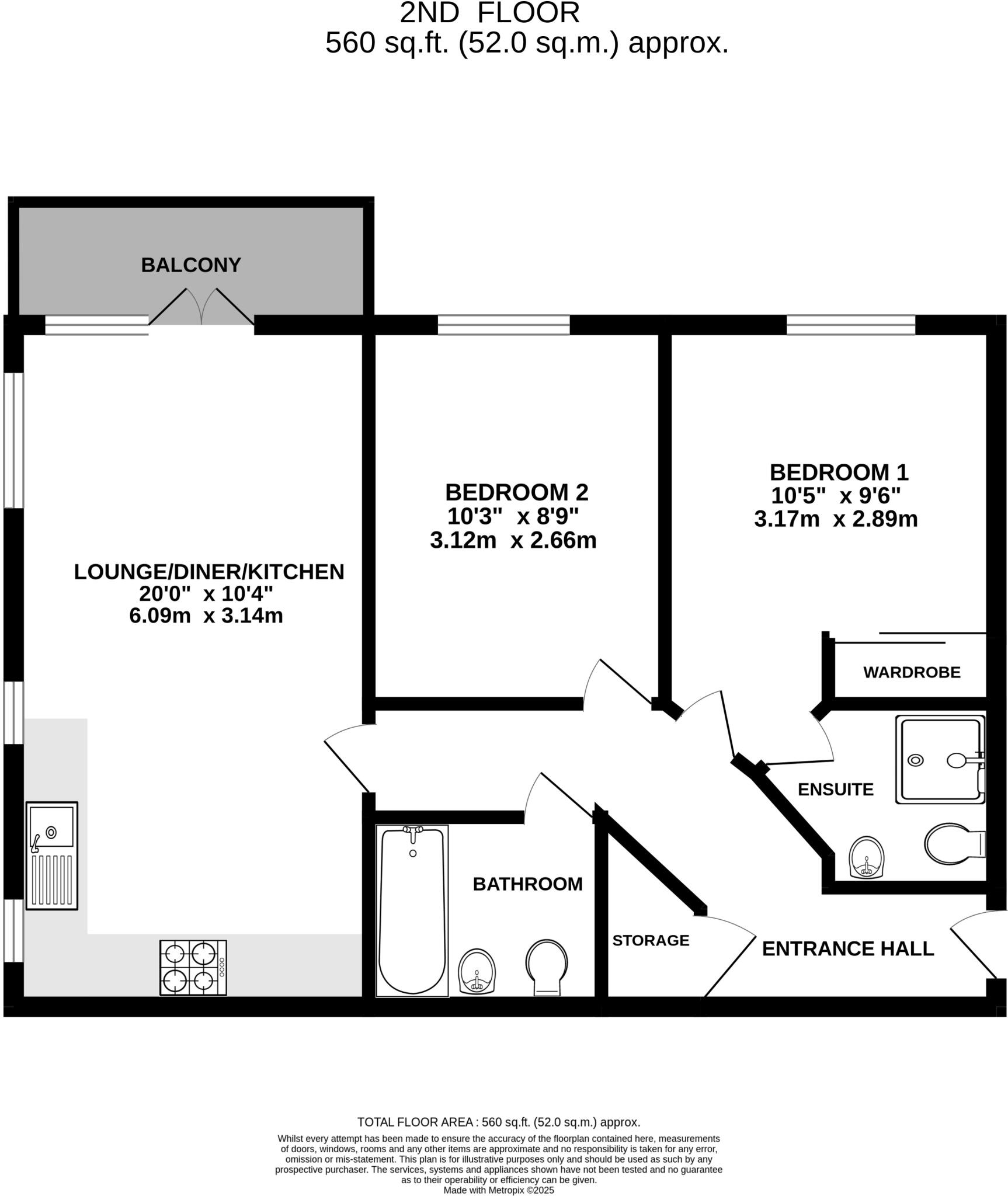
A compact, modern two-bedroom apartment on the second floor with lift access, well suited to a first-time buyer seeking low-maintenance living. The open-plan 20ft lounge/kitchen opens onto a good-sized balcony; there is also a large residents-only roof terrace and an allocated parking space to the rear. Two double bedrooms, fitted wardrobes and two bathrooms add practical convenience for sharers or a small family.
The property is leasehold, built 2003–2006, with double glazing and gas central heating (boiler and radiators). It benefits from quick links to local amenities, infant and junior schools (two rated Outstanding), and Basingstoke mainline station with services to London Waterloo in around 45 minutes. EPC band B and low council tax help running costs.
Buyers should note the apartment is relatively small at about 560 sq ft and sits within an area with higher crime and local deprivation indicators, which may affect resale or rental demand. The home is offered with no onward chain and presents straightforward move-in readiness, though buyers wanting more space or a quieter neighbourhood might prefer alternative locations.
Overall this is a practical, modern starter home or buy-to-let opportunity for someone prioritising easy maintenance, transport links and communal outdoor space over a larger internal footprint. Viewings available from 1 June onwards.
2 bedroom apartment for sale in Wylie Gardens, Basingstoke, RG24 — £185,000 • 2 bed • 2 bath • 608 ft²
2 bedroom flat for sale in Mallory Road, Basingstoke, RG24 — £180,000 • 2 bed • 2 bath • 613 ft²
2 bedroom apartment for sale in Tenzing Gardens, Basingstoke, RG24 — £170,000 • 2 bed • 2 bath • 628 ft²
1 bedroom ground floor flat for sale in John Hunt Drive, Basingstoke, RG24 — £170,000 • 1 bed • 1 bath • 381 ft²
2 bedroom flat for sale in John Hunt Drive, Basingstoke, Hampshire, RG24 — £200,000 • 2 bed • 2 bath • 585 ft²
2 bedroom apartment for sale in Rossetti Close, Basingstoke, RG24 — £215,000 • 2 bed • 1 bath • 828 ft²






























































