Low-maintenance modern flat with lift, parking and communal garden.
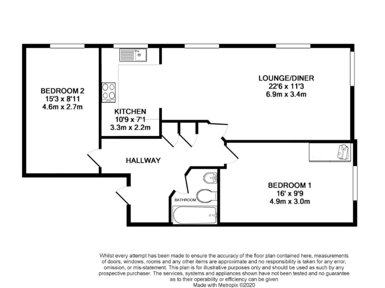
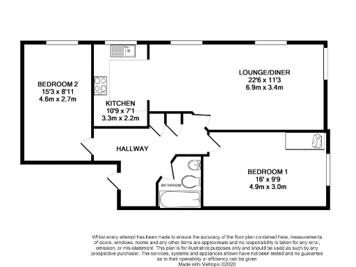
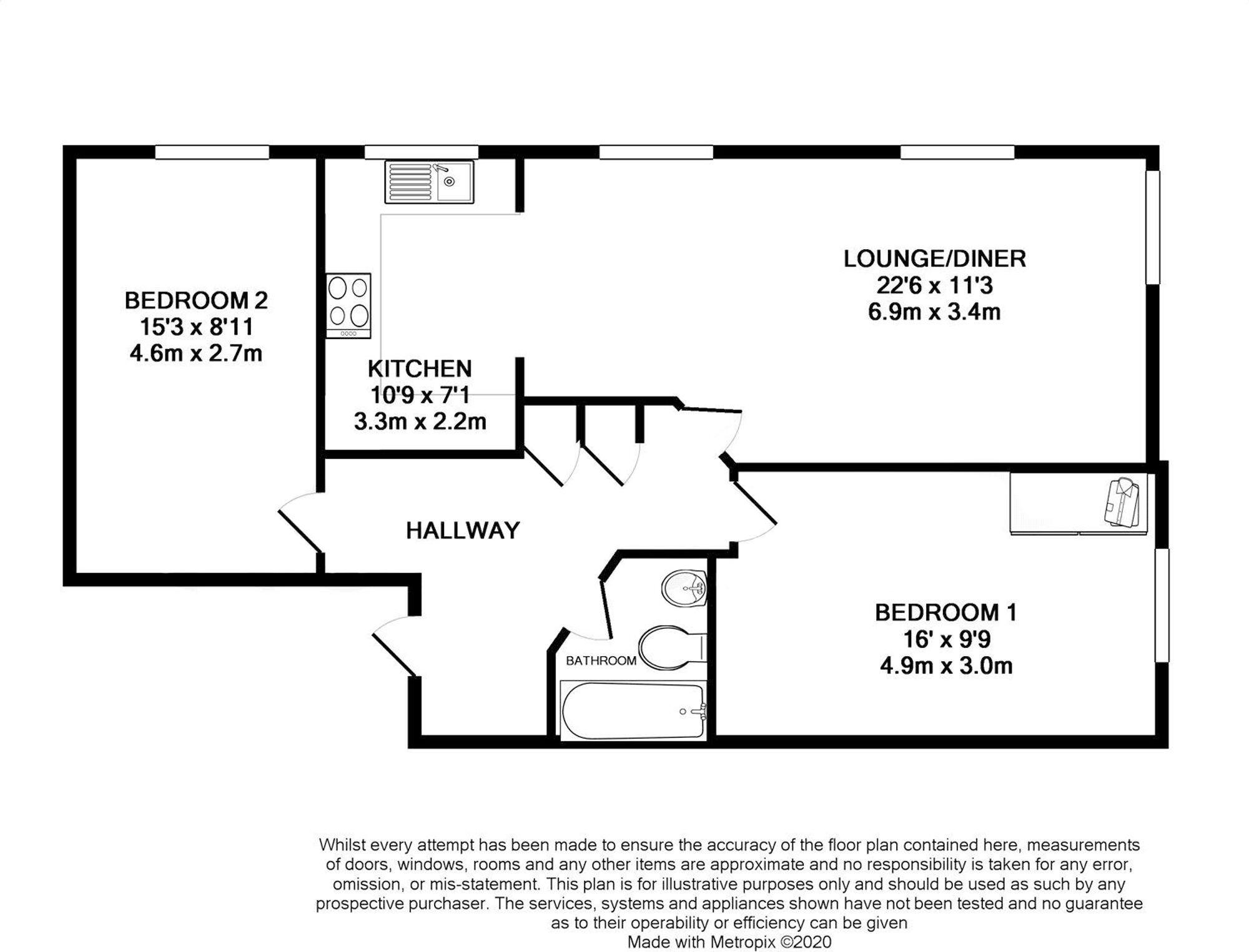
Top-floor two double bedrooms with spacious lounge/diner
A bright top-floor two-double bedroom apartment in a modern low-rise block, ideal for first-time buyers or buy-to-let investors. The spacious lounge/diner and well-proportioned bedrooms give practical, flexible living space for couples or a small family. Lift access, communal gardens, bike store and off-street parking add convenience, with a pleasant outlook over trees and maintained communal areas.
The home sits on a 108-year lease with an EPC B and mains gas central heating. Service charge is approximately £1371.72 annually and ground rent £249.96 per year; these running costs are reasonable but should be factored into affordability. Broadband speeds are average and mobile signal is excellent.
Location benefits include nearby supermarkets, healthcare, nurseries and several well-rated primary and secondary schools, plus good road links to the M3 and regular rail services from Basingstoke station. Note the local area indicators: higher crime levels and area deprivation; buyers should review local safety and community factors before committing.
Overall this apartment offers low-maintenance, modern living with clear commuting links and rental potential, but buyers must accept communal living costs and local area challenges.
2 bedroom ground floor flat for sale in Bourdillon Gardens, Basingstoke, RG24 — £180,000 • 2 bed • 2 bath • 571 ft²
2 bedroom flat for sale in Canadian Way, Basingstoke, RG24 — £280,000 • 2 bed • 1 bath • 553 ft²
2 bedroom apartment for sale in Winterthur Way, Basingstoke, Hampshire, RG21 — £270,000 • 2 bed • 2 bath • 761 ft²
2 bedroom flat for sale in Banbury Way, Basingstoke, Hampshire, RG24 — £190,000 • 2 bed • 1 bath • 578 ft²
2 bedroom flat for sale in Park Prewett Road, Basingstoke, RG24 — £225,000 • 2 bed • 1 bath • 600 ft²
2 bedroom flat for sale in Winterthur Way, Basingstoke, RG21 — £190,000 • 2 bed • 2 bath • 1055 ft²


























































