**Standout Features:**
- Recently refurbished commercial property with a modern design
- Formerly a thriving bar and restaurant, renowned for events and live music
- Includes a large function area, restaurant, bar, and an undeveloped section for expansion
- Expansive beer garden with its own outdoor bar and countryside views
- Excellent off-street parking
- Freehold tenure offering investment flexibility
**Potential Concerns:**
- Previous tenant ceased operations, requiring new ownership to re-establish the venue
- Services not fully connected (mains gas), which may require additional investment
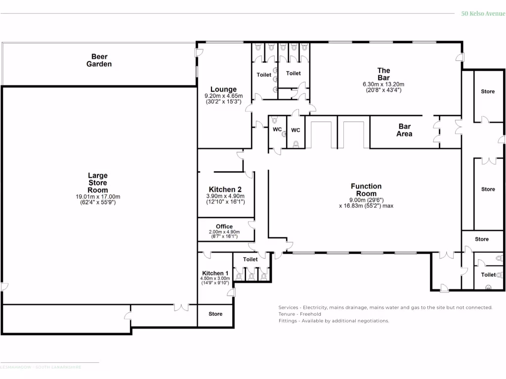
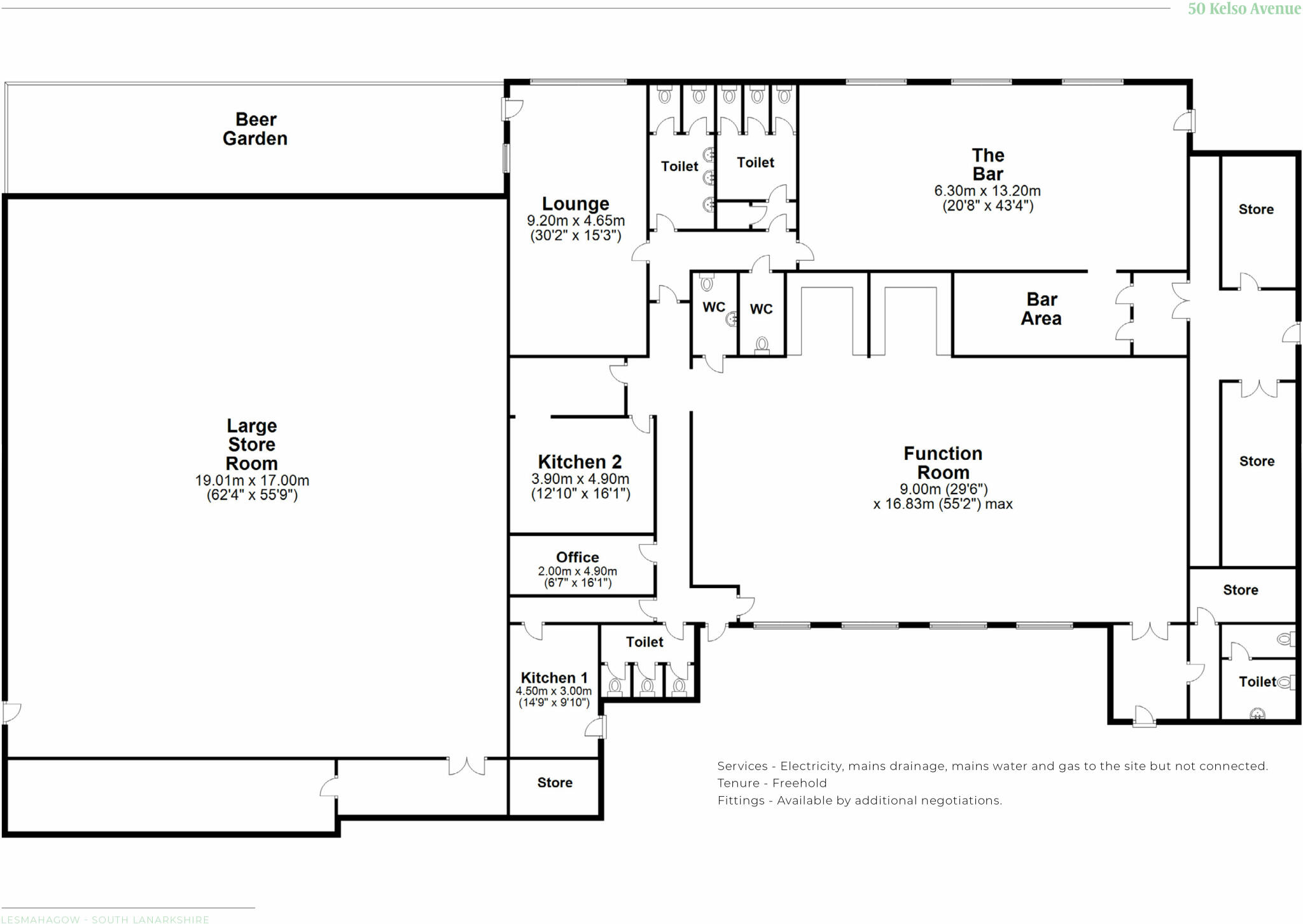
Located in the vibrant heart of Lesmahagow, this recently refurbished commercial property offers a fantastic 'turn key' investment opportunity. Formerly the well-known Harris and Ollie's, the space is equipped with everything a new owner needs to reignite its former success, including a large function room suited for a variety of events ranging from live music nights to family gatherings. The property features a contemporary bar and restaurant area, a games room leading to an expansive beer garden complete with a potential outdoor bar, all set against stunning countryside views.
Future owners will appreciate the development potential of the adjacent undeveloped section, which can be tailored to expand the existing business or create an entirely new venture. With excellent parking provision and vital amenities nearby, this property promises not just a space but a chance to become an integral part of the community once again. Act quickly, as opportunities like this in the local market are rare and ideal for those ready to invest in a lively commercial space with a rich history.
Restaurant for sale in Station Road, Law, Carluke, South Lanarkshire, ML8 — £125,000 • 1 bed • 1 bath
Commercial property for sale in Struths Bar, Larkhall, ML9 1DX, ML9 — £85,000 • 1 bed • 1 bath
Commercial property for sale in High Street, Lanark, ML11 — £160,000 • 1 bed • 1 bath • 3229 ft²
Commercial property for sale in Broomgate, Lanark, ML11 — £60,000 • 1 bed • 1 bath • 757 ft²
Leisure facility for sale in Struths Bar, Larkhall, ML9 1DX, ML9 — £67,000 • 1 bed • 1 bath
Commercial property for sale in The Village Inn Thankerton Biggar ML12 6NY, ML12 — £155,000 • 1 bed • 1 bath • 980 ft²






































































































