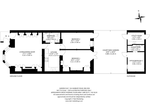
**Standout Features:**
- Architect-designed 1,099 sq ft apartment
- Two double bedrooms with bespoke integrated wardrobes
- Contemporary bathroom with tub-style bath
- Landscaped courtyard garden with dining terrace
- Home office/guest suite with shower room
- Driveway parking and convenient access
- No onward chain with 955 years left on lease
Nestled in the vibrant Clifton area, this stunning architect-designed apartment combines the charm of Victorian architecture with modern, minimalist aesthetics. Spanning 1,099 sq ft, it features a bright and spacious bay-fronted living room with bespoke storage and engineered ash flooring, seamlessly connecting to a stylish, two-tone kitchen equipped with integrated appliances. Both generous double bedrooms boast integrated wardrobes and direct access to the enchanting west-facing landscaped garden, ideal for relaxation and outdoor dining.
The unique property includes a fully insulated home office or guest suite, offering flexibility for remote work or hosting. This thoughtfully designed space includes a shower room and utility area, enhancing its practicality. Situated in an affluent, cosmopolitan neighborhood with excellent schools nearby, this home is perfect for families or professionals seeking a tranquil yet connected lifestyle. The property is chain-free, presenting an exceptional opportunity for those looking to weave their lives into this coveted location. Don’t miss out—schedule your viewing today to experience the unparalleled charm and potential of this remarkable residence.
3 bedroom apartment for sale in Woodland Road, Bristol, BS8 — £600,000 • 3 bed • 1 bath • 1586 ft²
2 bedroom apartment for sale in The Kensington, Kensington Place, Bristol, BS8 — £550,000 • 2 bed • 2 bath • 717 ft²
2 bedroom apartment for sale in Osborne Road, Clifton, Bristol, BS8 — £400,000 • 2 bed • 2 bath • 818 ft²
2 bedroom flat for sale in Oakfield Mansions, Clifton, Bristol, BS8 — £680,000 • 2 bed • 2 bath • 1064 ft²
2 bedroom flat for sale in Oakfield Road, Clifton, BS8 — £575,000 • 2 bed • 2 bath • 1098 ft²
2 bedroom apartment for sale in Lansdown Place | Clifton, BS8 — £600,000 • 2 bed • 2 bath • 1200 ft²














































































