Spacious three-bedroom home with loft ensuite and a private courtyard near Morpeth centre.
Spacious 3-bed mid-terrace, converted loft with ensuite and extra WC
Large master bedroom with built-in wardrobes
High ceilings, bay lounge and period decorative features
Private, low-maintenance rear courtyard garden
EPC C; mains gas boiler and radiators
Solid brick walls likely without insulation — upgrade potential
Small plot and no confirmed private parking
Located in town centre; area records higher crime levels
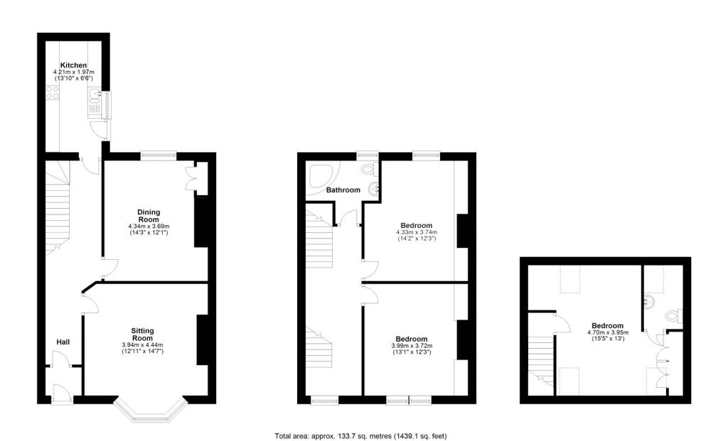
Set in Morpeth town centre, this large mid-terrace home combines period detail with practical living space. High ceilings and a bay-front lounge create an immediate sense of space, while the converted loft with ensuite adds flexible accommodation for guests, home office use, or a private bedroom.
The ground floor provides a formal dining room and a practical rear kitchen with courtyard access and useful understairs storage. Upstairs there are two double bedrooms including a generous master with built-in wardrobes, plus a large family bathroom. The loft conversion adds a second WC and wash hand basin for convenience.
EPC rating C and mains gas central heating offer reasonable energy performance, but the original solid-brick walls are assumed to lack cavity insulation — further insulation work may improve comfort and running costs. The rear courtyard is low-maintenance, but the plot is small and there is no information on private parking.
This home will suit families or professionals who value town-centre convenience, character features and flexible living space. Note the property sits in an area with higher recorded crime levels; buyers should consider security improvements as required.
3 bedroom terraced house for sale in Hood Street, Morpeth, NE61 — £295,000 • 3 bed • 1 bath • 1229 ft²
4 bedroom terraced house for sale in Olympia Gardens, Morpeth, NE61 — £365,000 • 4 bed • 2 bath • 1634 ft²
4 bedroom terraced house for sale in Fenwick Grove, Morpeth, NE61 — £375,000 • 4 bed • 2 bath • 1596 ft²
3 bedroom terraced house for sale in Tenter Terrace, Morpeth, Northumberland, NE61 1TN, NE61 — £300,000 • 3 bed • 1 bath
3 bedroom terraced house for sale in Castle Street, Morpeth, NE61 — £169,950 • 3 bed • 1 bath • 968 ft²
2 bedroom terraced house for sale in Edward Street, Morpeth, NE61 — £139,500 • 2 bed • 1 bath • 1185 ft²


















































