**Standout Features:**
- Stunning bay-fronted Victorian terrace house
- Five spacious bedrooms across three storeys
- Charming original features including high ceilings and fireplaces
- Well-maintained with gas central heating and double glazing
- Private, non-bisected courtyard garden ideal for entertaining
- Prime location within walking distance to Norwich City Centre
**Concerns:**
- Property built before 1900 with no noted insulation
- Average-sized garden for city living, limited expansive views
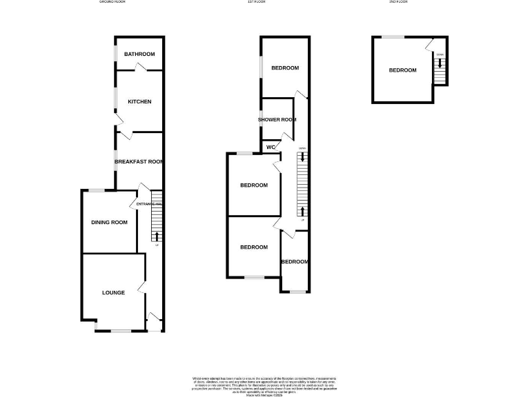
This magnificent five-bedroom, bay-fronted Victorian terrace, ideally situated just a short stroll from Norwich's vibrant city centre, offers an exceptional blend of period charm and modern comforts. Spread across three storeys, the property welcomes you with a grand hall entrance leading to a bright living room adorned with original features. The elegant dining room and cosy breakfast room seamlessly connect to a well-equipped kitchen, perfect for family gatherings. The second floor boasts four well-proportioned bedrooms and a stylish shower room, while the top level offers a spacious master suite or guest retreat.
Step outside to enjoy the private courtyard garden, a delightful suntrap for al fresco dining or quiet relaxation. With excellent local amenities, schools, and transport links nearby, this versatile home caters to families and professionals alike, presenting a rare opportunity to own a piece of Norwich's rich architectural heritage. Don't miss your chance—early viewing is highly recommended!
4 bedroom terraced house for sale in Denmark Road, Norwich, Norfolk, NR3 — £450,000 • 4 bed • 2 bath • 1646 ft²
2 bedroom terraced house for sale in Hughenden Road, Norwich, NR1 — £300,000 • 2 bed • 2 bath • 786 ft²
4 bedroom terraced house for sale in Buxton Road, Norwich, NR3 — £350,000 • 4 bed • 2 bath • 1314 ft²
3 bedroom terraced house for sale in Dereham Road, NORWICH, NR2 — £225,000 • 3 bed • 1 bath • 808 ft²
3 bedroom terraced house for sale in Hall Road, Norwich, NR1 — £325,000 • 3 bed • 1 bath • 1055 ft²
4 bedroom terraced house for sale in Pembroke Road, Norwich, NR2 — £475,000 • 4 bed • 2 bath • 1701 ft²


































































































