Bright, two‑bed apartment close to Kensington High Street and Notting Hill Gate.
Portered block with lift access and secure entry
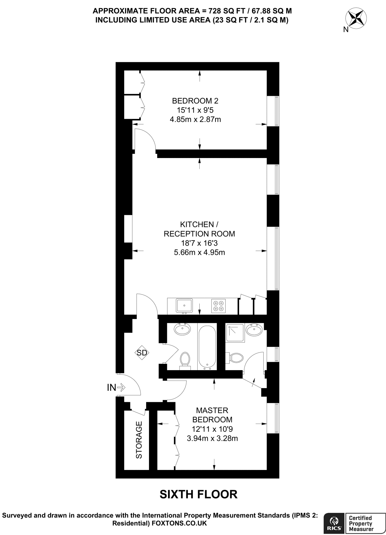
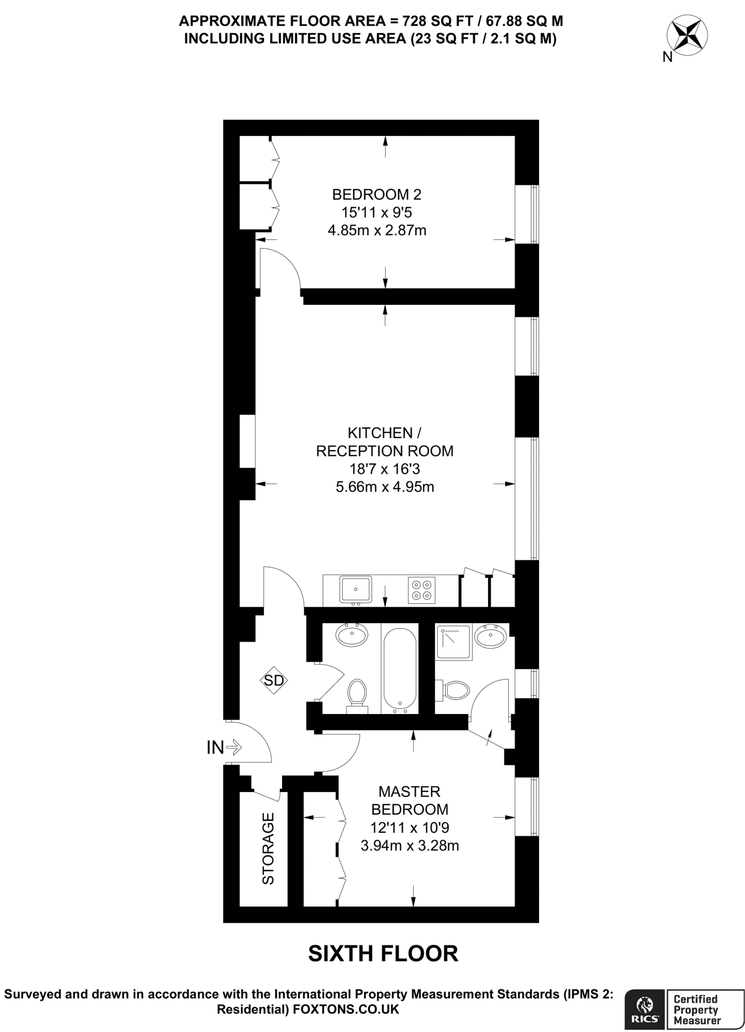
Set within a smart portered block on Vicarage Gate, this newly refurbished 2-bedroom flat offers bright, well-proportioned rooms and an open-plan reception/kitchen suitable for everyday living and entertaining. The apartment has been updated throughout and benefits from lift access, ample built-in storage and two bathrooms, including an en suite shower room.
At about 728 sq ft, the layout maximises space while retaining period character in a building constructed c.1900–1929. Secondary glazing and solid brick walls are present; heating is via a community mains-gas scheme. Broadband and mobile signal are both strong, and the location places Kensington High Street and Notting Hill Gate amenities within easy reach.
Practical considerations include a 97-year lease and a service charge of approximately £6,000 per year, which is above average and should be factored into ongoing costs. Crime levels in the immediate area are reported as very high, so buyers should consider security needs despite the portered entrance.
This apartment will suit buyers seeking a central Kensington base with contemporary interiors and period bones — ideal for couples, first-time buyers looking to step onto the local ladder, or buyers seeking a well-presented rental opportunity. The flat is ready to move into but buyers should note the lease length and service charge when assessing long-term value.
1 bedroom apartment for sale in Vicarage Gate, Kensington, London, W8 — £595,000 • 1 bed • 1 bath • 542 ft²
2 bedroom flat for sale in Kensington High Street, Kensington, London, W14 — £650,000 • 2 bed • 1 bath • 764 ft²
1 bedroom flat for sale in Vicarage Court, Kensington, W8 — £465,000 • 1 bed • 1 bath • 416 ft²
3 bedroom flat for sale in Kensington High Street, High Street Kensington, London, W8 — £1,600,000 • 3 bed • 2 bath • 1257 ft²
1 bedroom flat for sale in Vicarage Court, Vicarage Gate, Kensington, London, W8 — £465,000 • 1 bed • 1 bath • 395 ft²
2 bedroom flat for sale in Vicarage Gate, London, W8 — £1,275,000 • 2 bed • 2 bath • 630 ft²






























































































