Light-filled extended family home with south-facing garden and strong school links.
Approximately 2,209 sq ft across four floors, including basement and loft
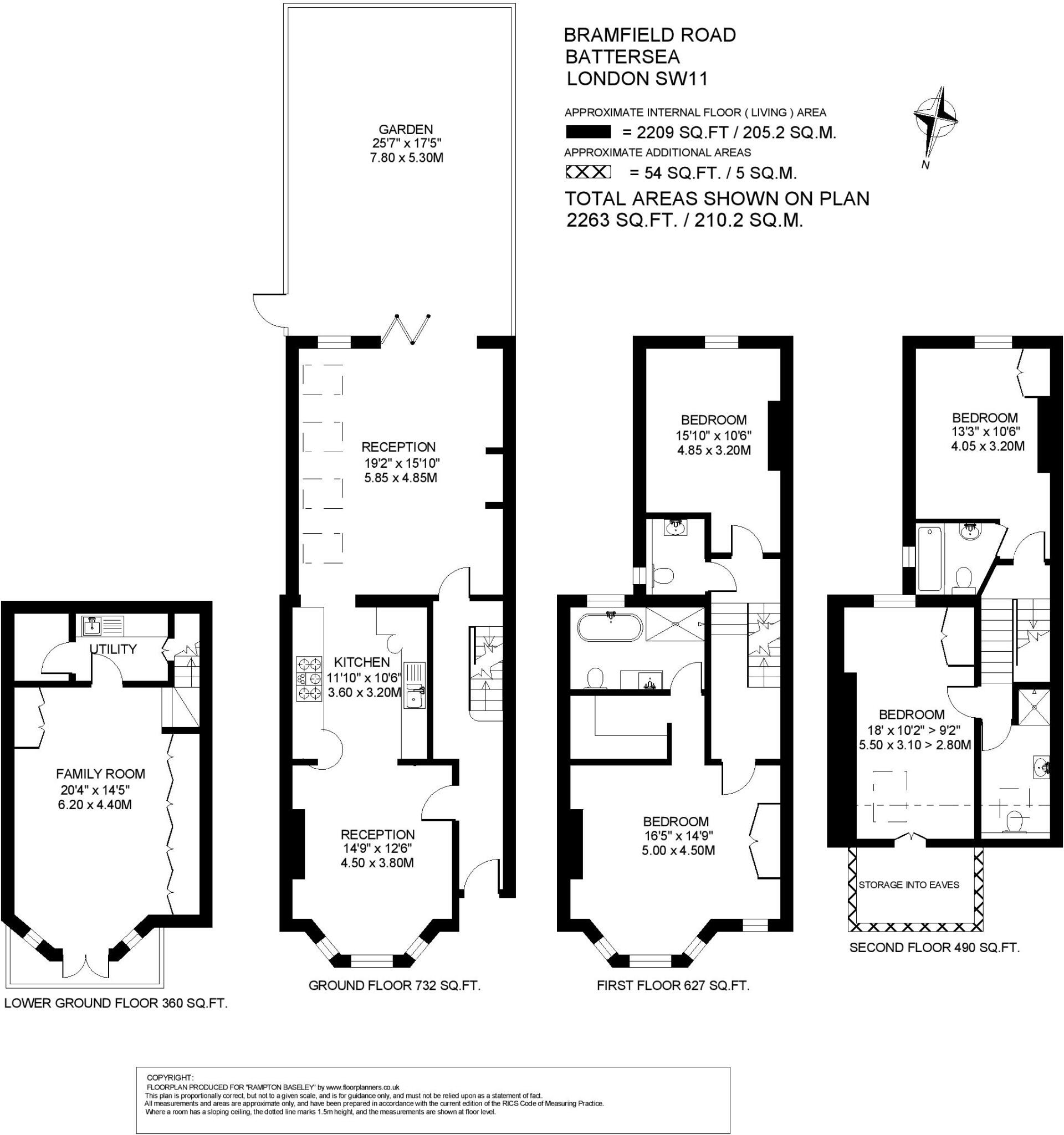
This handsome end-of-terrace family house offers generous living across four floors, with about 2,209 sq ft arranged over lower ground, ground, first and second floors. Extended into the loft, side return and basement, the layout combines spacious reception rooms, contemporary kitchen fittings and a large principal suite with dressing room and en suite. The rear reception’s rooflights and full-width bi-fold doors fill the house with light and open onto a south-facing garden designed for alfresco dining and entertaining.
Practical family features include a lower-ground family room with built-in storage and a separate utility, double glazing (install date unknown) and mains gas central heating via boiler and radiators. The location is strong for family buyers: close to Northcote Road amenities, parks (Wandsworth and Clapham Commons), and well-regarded primary and secondary schools; Clapham Junction and Clapham South stations are a 10–15 minute walk.
Buyers should note a few material points: the property is a solid-brick period build (c.1900–1929) with assumed lack of wall insulation, Council Tax band G (quite expensive) and a relatively small plot. The house is freehold and presented in contemporary condition, but older construction may be less thermally efficient than modern builds and could benefit from insulation improvements where feasible.
Overall, this is a spacious, well-configured family home in a desirable SW11 location, offering flexible living and strong schooling and transport links. It will suit buyers seeking substantial internal space and easy access to local amenities, with some scope to improve thermal performance over time.
4 bedroom terraced house for sale in Bramfield Road, SW11 — £1,550,000 • 4 bed • 2 bath • 1790 ft²
5 bedroom end of terrace house for sale in Wakehurst Road, SW11 — £2,000,000 • 5 bed • 3 bath • 2513 ft²
5 bedroom house for sale in Leathwaite Road, SW11 — £1,900,000 • 5 bed • 3 bath • 2021 ft²
4 bedroom terraced house for sale in Grandison Road, SW11 — £1,860,000 • 4 bed • 3 bath • 1978 ft²
5 bedroom terraced house for sale in Bennerley Road, SW11 — £1,725,000 • 5 bed • 4 bath • 2052 ft²
4 bedroom terraced house for sale in Shandon Road, London, SW4 — £1,900,000 • 4 bed • 3 bath • 2170 ft²














































































