E6 3AN - 1 bed light filled bay flat in 25 Hockley Avenue, E6 3AN

View on Property Piper

1 bedroom flat for sale in Hockley Avenue, East Ham, London, E6

Summary - Hockley Avenue, East Ham, London, E6 E6 3AN

1 bed 1 bath Flat

Characterful starter home near Upton Park and local amenities.
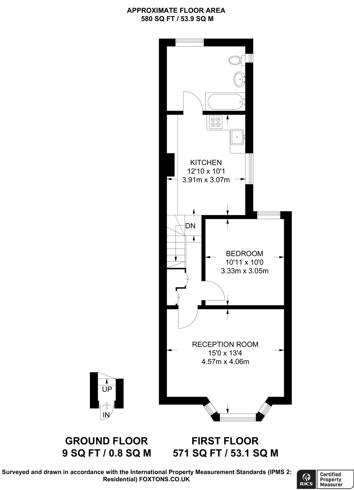
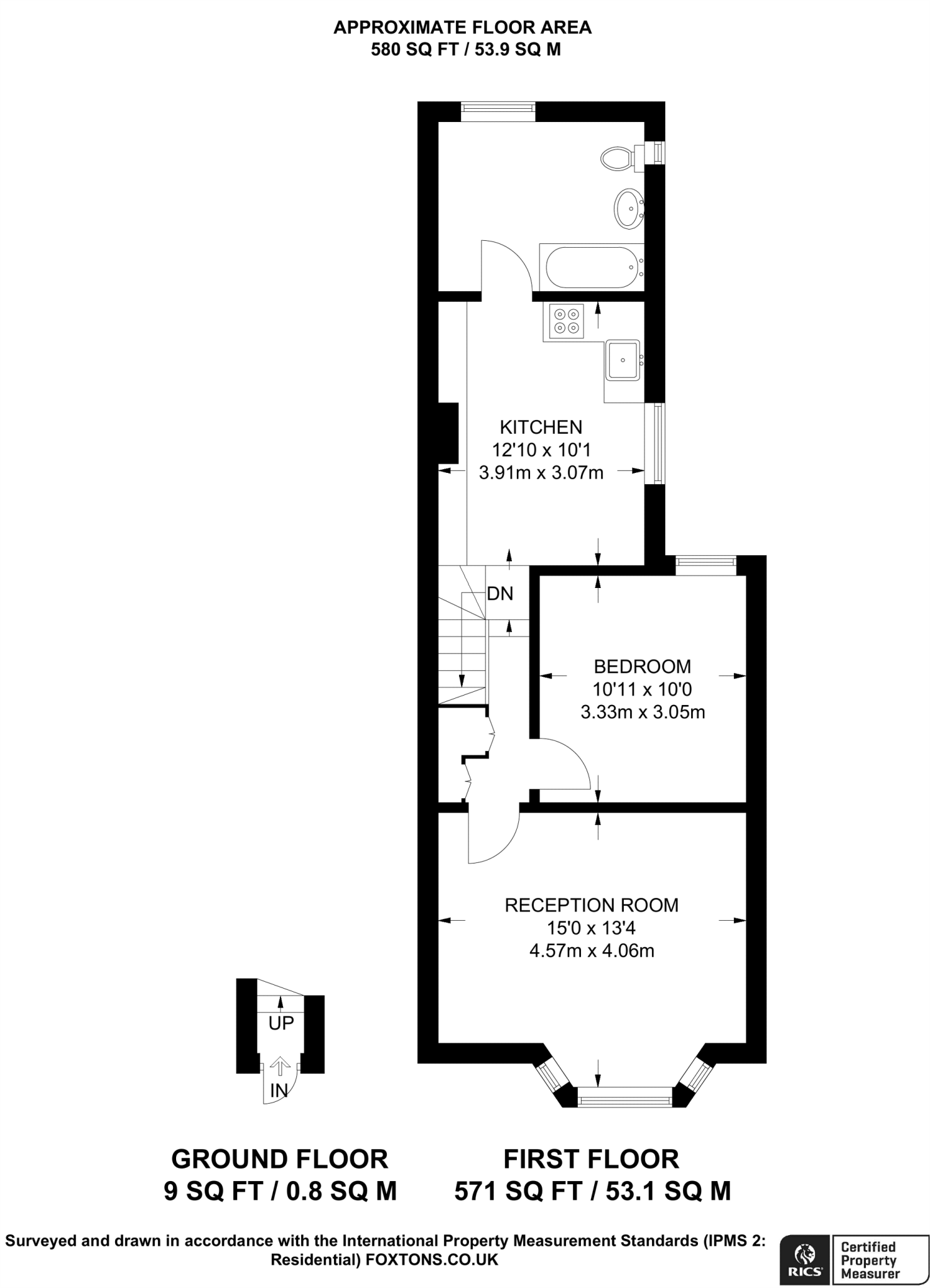
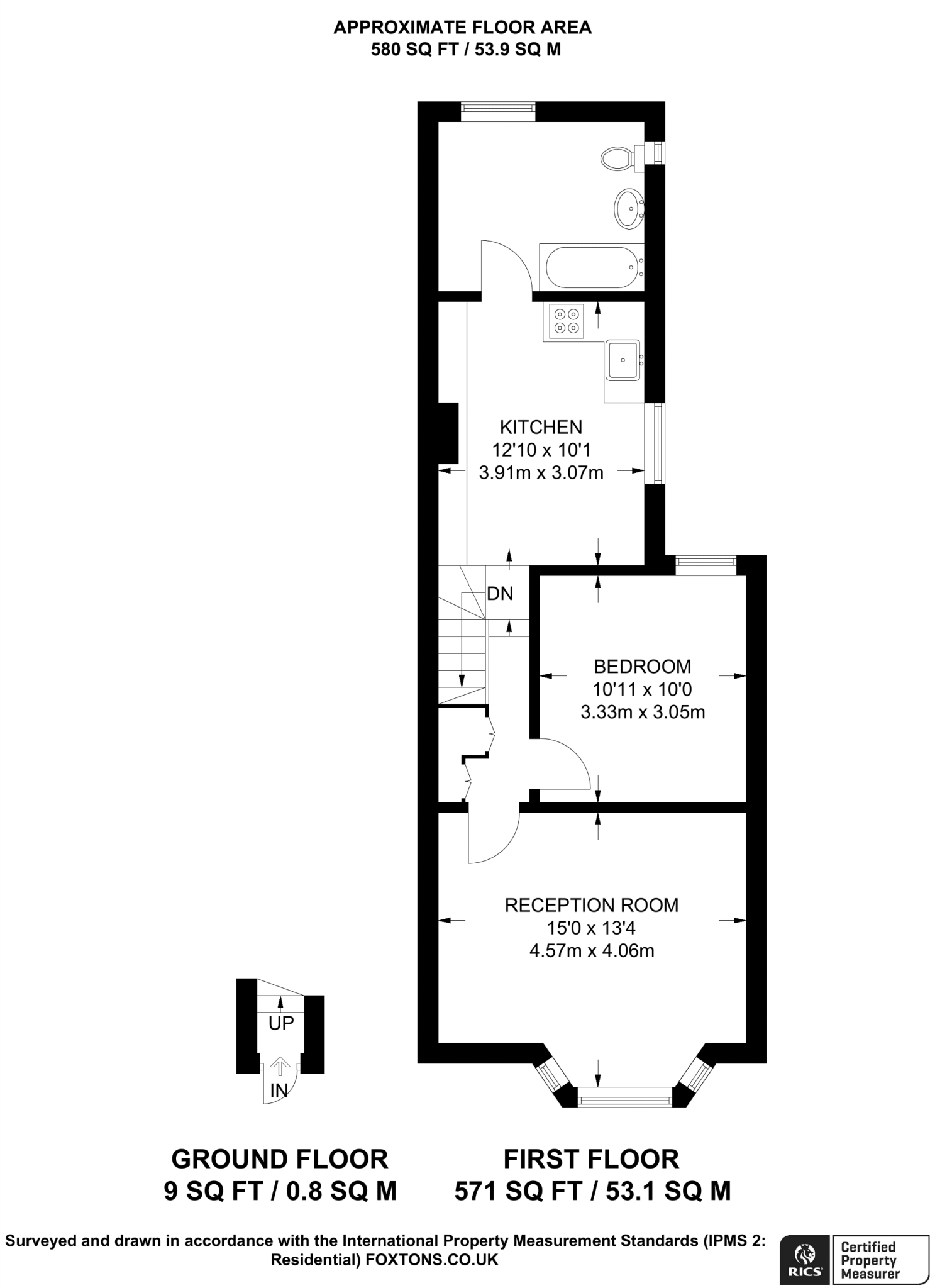
• First-floor one-bedroom flat with bay-front reception and high ceilings
• Separate kitchen and large bathroom with white suite
• Approximately 580 sq ft — average-sized apartment
• Double glazing present; install date unknown
• Leasehold tenure — buyer to check lease length and charges
• Solid brick walls; likely no cavity insulation, retrofit may be needed
• Located near Upton Park transport and East Ham shopping amenities
• Area shows high crime and wider deprivation indicators
This first-floor one-bedroom flat offers bright, bay-front living in a 1930s period building, set between East Ham and Upton Park. The bay-front reception room has high ceilings and natural light, creating an airy space for dining and everyday living. The separate kitchen and large bathroom provide practical room layout for everyday use.

At 580 sq ft, the apartment is an average-sized home with useful bedroom storage and double glazing (install date unknown). It benefits from excellent mobile and fast broadband, and Upton Park transport links plus East Ham shopping are within easy reach. Several well-regarded local schools, including an outstanding secondary, add family appeal.

Key considerations: the property is leasehold and located in an area with higher crime rates and general deprivation indicators. The building’s solid brick construction likely lacks cavity wall insulation, so heating costs and future insulation work should be factored in. The flat presents clear scope for cosmetic updating and energy-efficiency improvements.

This home will suit a first-time buyer or investor seeking a characterful, well-located flat with immediate usability and potential to add value through refurbishment and improved insulation.

Property Details

Image Descriptions

Floorplan Description

Rooms

Textual Property Features

Target Audience

AI Tags

Detected Visual Features

EPC Details

Nearby Schools

Nearest Bars And Restaurants

,,,,}

Nearest General Shops

,,}

Nearest Grocery shops

,,}

Nearest Supermarkets

,,}

Nearest Religious buildings

,,}

Nearest Medical buildings

,,,}

Nearest Airports

,}

Nearest Leisure Facilities

,,,,}

Nearest Tourist attractions

,,}

Nearest Train stations

,,,,}

Nearest Bus stations and stops

,,,,}

Nearest Hotels

,,}

Tags

Local Market Stats

AirBnB Data

Similar Properties

Meta

High Res Images

Compatible Images

Low res Images

Thumbnails

Raw Images

High Res Floorplan Images

Compatible Floorplan Images

Low res Floorplan Images

FloorplanImages Thumbnail

Raw Floorplan Images