Affordable central flat with parking, ideal starter purchase or buy-to-let.
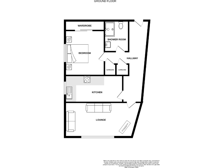
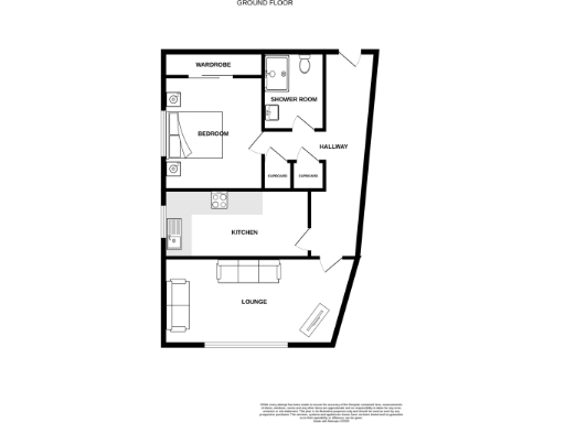
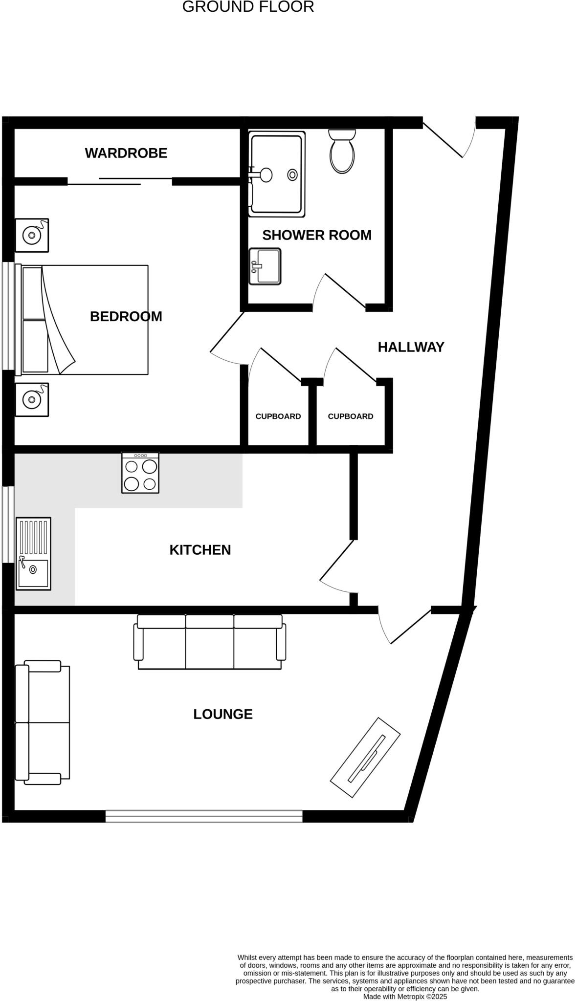
- Ground-floor one-bedroom flat, compact 431 sq ft
- Allocated off-street parking directly outside the block
- Convenient walking distance to Cannock town centre and amenities
- Separate kitchen, lounge, bedroom with built-in wardrobe
- Leasehold tenure — check remaining term and service charges
- No private garden; communal grounds are small
- Some cosmetic updating required (peeling paint, dated fittings)
- Local crime levels above average; consider security measures
This ground-floor one-bedroom flat sits in a purpose-built brick block just a short walk from Cannock town centre, local shops and transport links. The apartment is compact at 431 sq ft and offers an allocated parking space directly in front of the building — a practical benefit in a central location.
Internally the layout is straightforward: entrance hall with storage cupboards, lounge, separate kitchen, bedroom with built-in wardrobe and a shower room. The building dates from the early 1990s and benefits from double glazing and gas central heating. Broadband and mobile signal are reported as good, and there is very low flood risk.
Important considerations: the property is leasehold, has a small internal footprint with no private garden, and the living areas show some cosmetic wear and will benefit from updating. Crime levels in the area are above average, which may affect suitability for some buyers. Overall this is a practical, affordable option for a first-time buyer, downsizer or investor seeking a manageable, centrally located flat with parking.
1 bedroom flat for sale in New Penkridge Road, Cannock, Staffordshire, WS11 — £125,000 • 1 bed • 1 bath • 523 ft²
1 bedroom apartment for sale in St. Johns Road, Cannock, Staffordshire, WS11 — £95,000 • 1 bed • 1 bath • 442 ft²
2 bedroom ground floor flat for sale in Allport Road, Cannock, WS11 — £100,000 • 2 bed • 1 bath • 418 ft²
1 bedroom apartment for sale in Heath Way, Heath Hayes, Cannock, Staffordshire, WS11 — £88,000 • 1 bed • 1 bath • 496 ft²
1 bedroom flat for sale in 3 Penkridge Court, New Penkridge Road, Cannock, WS11 — £130,000 • 1 bed • 1 bath • 452 ft²
1 bedroom flat for sale in Woodford End, Chadsmoor, Cannock, WS11 — £57,000 • 1 bed • 1 bath • 388 ft²






























