Affordable starter flat with long lease and low running costs.
Allocated off-street parking space included
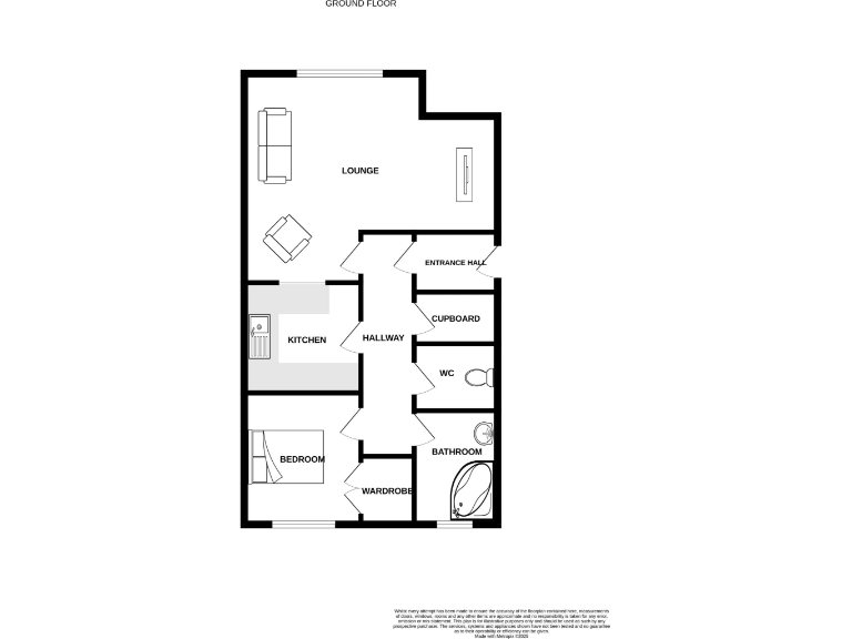
This ground-floor one-bedroom flat provides an affordable, low-maintenance entry onto the property ladder. At about 496 sq ft, the layout is compact and practical with a lounge, fitted kitchen, bedroom with wardrobe, separate bathroom and WC — all presented in clean, move-in-ready condition.
Practical benefits include an allocated off-street parking space, double glazing, a long lease (circa 118 years remaining) and no upward chain, which should ease a quick sale. Council tax is very low, and the location offers good local amenities and transport links for commuting or daily needs.
Be aware of a few material points: the property is leasehold (standard obligations and any service charges may apply), heating is by electric room heaters rather than a central system, and overall space is best suited to a single occupant or couple rather than a family. The kitchen is compact and the home is modestly sized, so buyers wanting larger living areas should budget for a different property.
For a first-time buyer or someone downsizing, this flat represents good value — minimal immediate upkeep, straightforward layout and long lease length give a stable platform to personalise or hold as an investment. Investors should note the size and heating type when assessing rental appeal and running costs.
1 bedroom ground floor flat for sale in Chester Road, Rugeley, WS15 1GD, WS15 — £104,950 • 1 bed • 1 bath • 496 ft²
2 bedroom flat for sale in Windrush Close, Walsall, WS3 — £133,000 • 2 bed • 1 bath • 569 ft²
1 bedroom flat for sale in Woodford End, Chadsmoor, Cannock, WS11 — £57,000 • 1 bed • 1 bath • 388 ft²
1 bedroom apartment for sale in Corporation Street West, Walsall, WS1 — £100,000 • 1 bed • 1 bath • 388 ft²
1 bedroom apartment for sale in Mill Croft, Bilston, WV14 — £100,000 • 1 bed • 1 bath • 410 ft²
2 bedroom flat for sale in Walker Road, Walsall, WS3 — £90,000 • 2 bed • 1 bath • 614 ft²










































