**Standout Features:**
- Expansive rural plot of approximately 0.96 acres, offering privacy and natural beauty.
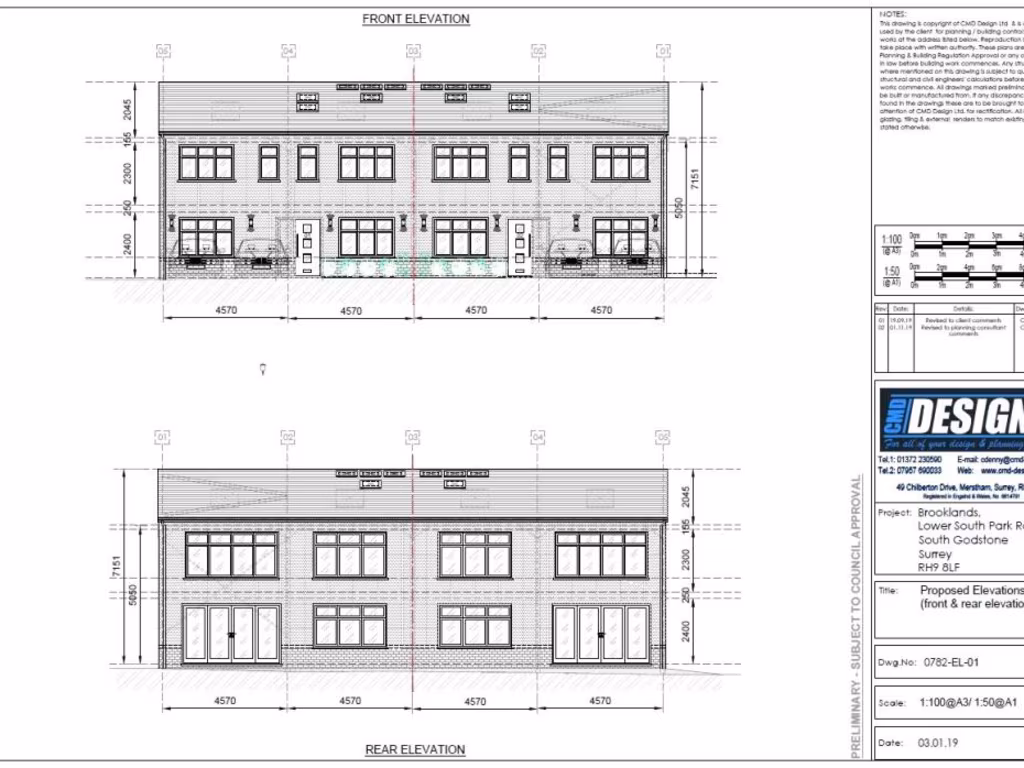
- Planning consent for development of 3 terraced houses and 2 semi-detached houses, totaling 4,941 sq ft.
- Direct access to bridle paths, perfect for equestrian activities.
- Freehold with vacant possession, chain-free sale.
- Conveniently located near the A22, M25, Gatwick, and local rail links.
**Notable Concerns:**
- Currently serviced with a farm electricity supply; mains water installation required.
- Slow broadband speeds and average mobile signal connectivity.
Discover an exceptional development opportunity in this tranquil countryside location! The available plot at Brookland Farm Barns is a dream for developers and investors, combining scenic beauty with robust connectivity. Nestled in an expansive landscape with breathtaking views, this land currently boasts planning consent for three terraced houses and two semi-detached homes, paving the way for a lucrative investment or a spacious family retreat.
Imagine creating a self-sustaining community or a peaceful residence surrounded by nature, horseback riding trails, and lush greenery. Enjoy the benefit of off-street parking and a serene lifestyle in a prospering countryside setting, all while maintaining easy access to major transport links and local amenities. With vacant possession and chain-free status, seize this opportunity while it lasts!
Land for sale in The Smallholdings, Lingfield, Surrey, RH7 6HY, RH7 — £250,000 • 1 bed • 1 bath
4 bedroom detached house for sale in Theobalds Road, Burgess Hill, East Sussex, RH15 — £1,250,000 • 4 bed • 2 bath • 2280 ft²
Barn for sale in Blanks Lane, Charlwood, Surrey, RH60ES, RH5 — £160,000 • 1 bed • 1 bath • 1593 ft²
Land for sale in Ashton Pond, Lingfield, Surrey, RH7 6HY, RH7 — £165,000 • 1 bed • 1 bath • 3100 ft²
Land for sale in Plot 2, Land at St. Piers Lane, Lingfield, RH7 — £27,000 • 1 bed • 1 bath
Land for sale in Groombridge,Tunbridge Wells, TN3 — £250,000 • 1 bed • 1 bath






































































