Single-storey river living with private mooring and garden, ideal for downsizers.
South-facing garden with direct river access and private mooring
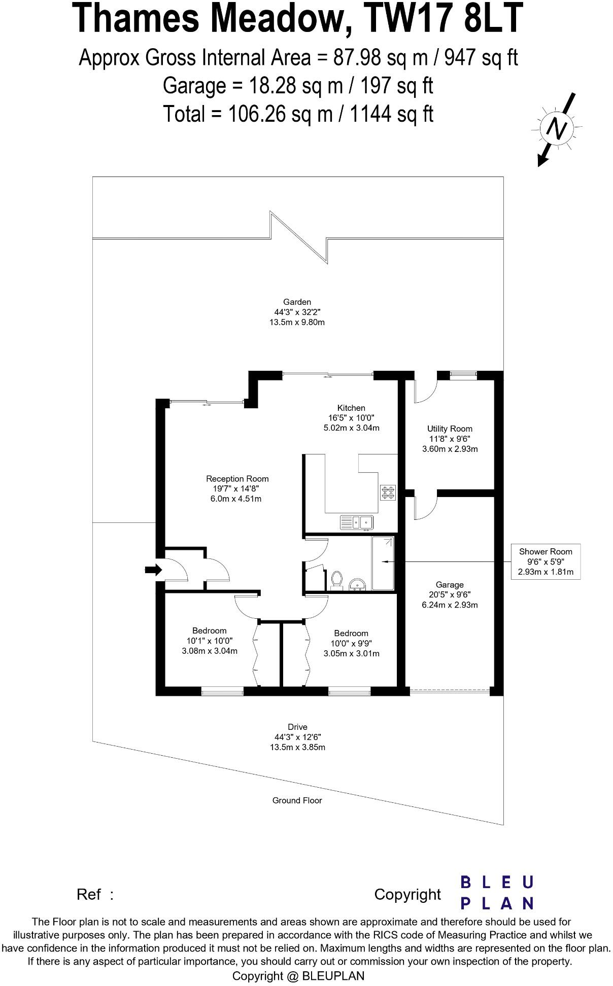
Set on a south-facing plot with direct access to the River Thames, this two-bedroom detached bungalow delivers a rare waterside lifestyle with private mooring. Large windows and patio doors in the lounge-dining room frame uninterrupted river views and open onto a mature garden that’s ideal for outdoor living and seasonal entertaining.
Internally the layout is traditional and practical: a generous lounge/dining room, fitted kitchen with river aspect, two double bedrooms and a single family bathroom. An attached garage and substantial utility/storage room add everyday convenience and useful storage for boating or garden equipment. The property extends to about 947 sqft, offering comfortable single-storey living for downsizers or buyers wanting a riverside retreat.
Buyers should note material considerations: the house dates from the 1950s–60s, cavity walls are assumed uninsulated and the double glazing was installed before 2002, so energy performance and thermal comfort could be improved. There is a high flood risk on this stretch of the Thames — this is a significant factor for insurance and long-term maintenance. Overall the home will suit buyers seeking a scenic, well-located bungalow with scope to update and improve rather than a recently refurbished turnkey property.
Located in Shepperton, the property benefits from local amenities, good schools and direct rail services to London Waterloo. For anyone prioritising riverside living with private mooring and straightforward single-floor accommodation, this bungalow offers an attractive and rare package — provided you are comfortable managing flood risk and potential energy-efficiency upgrades.
3 bedroom detached house for sale in Dockett Eddy, Chertsey, Surrey, KT16 — £1,250,000 • 3 bed • 2 bath • 1673 ft²
3 bedroom bungalow for sale in Lower Ash Estate, Shepperton, Surrey, TW17 — £675,000 • 3 bed • 2 bath • 1202 ft²
4 bedroom bungalow for sale in Towpath, Shepperton, TW17 — £1,100,000 • 4 bed • 2 bath • 2546 ft²
2 bedroom detached house for sale in Pharaohs Island, Shepperton, Surrey, TW17 — £675,000 • 2 bed • 1 bath • 911 ft²
2 bedroom bungalow for sale in Hamhaugh Island, Shepperton, TW17 — £699,950 • 2 bed • 1 bath • 1009 ft²
4 bedroom bungalow for sale in Sandhills Meadow, Shepperton, TW17 — £750,000 • 4 bed • 1 bath • 1262 ft²






































































