**Standout Features:**
- Charming detached timber bungalow on Hamhaugh Island
- Private 33ft mooring with beautiful river views
- Spacious open-plan living area with vaulted ceiling and bi-fold doors
- Potential for extension (subject to planning permission)
- Three off-street parking spaces
- No onward chain, ensuring a quick sale
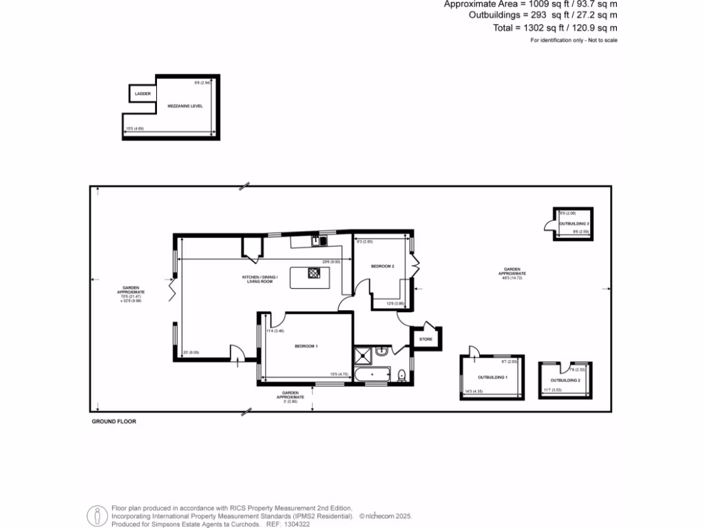
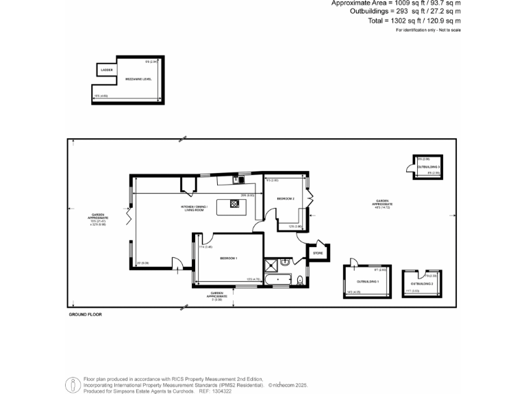
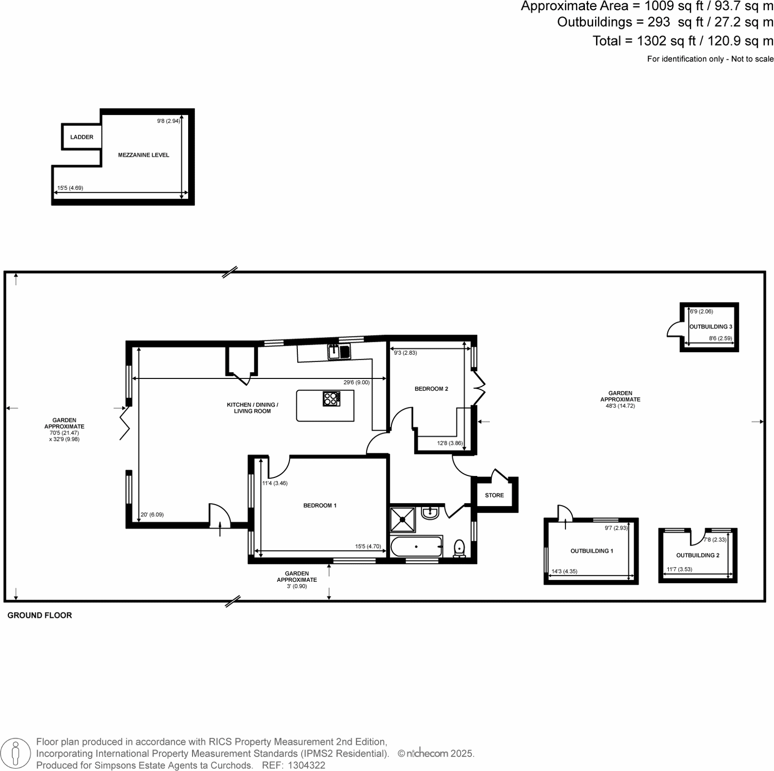
Discover your peaceful retreat on Hamhaugh Island, where this charming 2-bedroom timber bungalow offers an idyllic waterfront lifestyle. With approximately 1,009 square feet of well-arranged living space, the heart of the home is a bright, open-plan living area complete with vaulted ceilings and bi-fold doors that seamlessly connect indoor and outdoor spaces—ideal for entertaining or simply enjoying the stunning river views.
The generous garden features a terrace overlooking the river and is complemented by a unique riverside hut, perfect for leisure or storage. An upper mezzanine level provides potential for extra storage or a cozy guest space, enhancing the property's versatility. Notably, this residence presents an exciting opportunity for improvements or extensions, allowing you to tailor it to your liking (subject to planning).
Located on a large plot in a tranquil area, this property boasts three off-street parking spaces and is free from any onward chain, making it an attractive buy for families, retirees, or investors drawn to the serene riverside lifestyle. Don't miss the chance to secure this exceptional home that invites you to embrace unobstructed views and outdoor enjoyment amidst nature's beauty. Act fast—this exclusive opportunity won’t last long!
3 bedroom bungalow for sale in Hamhaugh Island, Shepperton, TW17 — £900,000 • 3 bed • 2 bath • 1940 ft²
4 bedroom detached house for sale in Hamhaugh Island, Shepperton, TW17 — £920,000 • 4 bed • 3 bath • 1615 ft²
4 bedroom detached house for sale in Hamhaugh Island, Shepperton, Middlesex, TW17 — £920,000 • 4 bed • 2 bath • 1614 ft²
4 bedroom detached house for sale in Hamhaugh Island, Shepperton, Surrey, TW17 — £1,250,000 • 4 bed • 2 bath • 1852 ft²
2 bedroom detached house for sale in Pharaohs Island, Shepperton, Surrey, TW17 — £675,000 • 2 bed • 1 bath • 911 ft²
3 bedroom detached house for sale in Sunbury Court Island, Sunbury-On-Thames, Surrey, TW16 — £950,000 • 3 bed • 2 bath • 1296 ft²


































































