NR4 7DE - 5 bedroom end of terrace house for sale in Buckingham Road,…

View on Property Piper

5 bedroom end of terrace house for sale in Buckingham Road, Norwich, NR4

Summary - 31, Buckingham Road NR4 7DE

5 bed 3 bath End of Terrace

Chain-free five-bedroom investment near UEA with parking and garden.
- Five bedrooms suited to sharers or family occupation
- No onward chain; freehold tenure
- Driveway for off-street parking
- Enclosed lawned rear garden
- Close walk/cycle distance to the University of East Anglia
- Gas central heating and double glazing
- Compact overall footprint (approx. 1,034 sq ft); some rooms small
- EPC D (68) with improvement potential
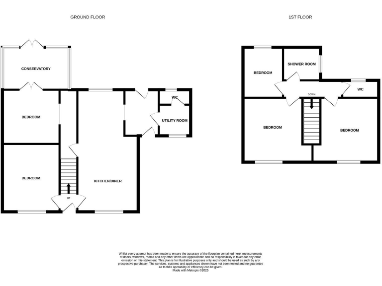
A five-bedroom end-of-terrace close to the University of East Anglia, offered chain-free and ready for an investor or landlord to take on immediately. The ground floor layout includes a modern kitchen/diner, utility, two bedrooms and multiple WCs, while three further bedrooms and a shower room sit on the first floor — a practical layout for multiple occupants or sharers.

Outside, a gravel driveway provides useful off-street parking and an enclosed lawned garden offers private outdoor space. The property benefits from gas central heating, double glazing, full-fibre broadband availability and a low council tax band, all helpful for rental appeal and tenant retention.

The house is post‑war (1950s–1960s) brick construction with a modest overall footprint (approx. 1,034 sq ft). While presented well in parts, some rooms are compact and there may be scope for improvement or reconfiguration to maximise rental income. EPC indicates scope to improve energy efficiency further.

Situated in a locality dominated by terraces and flats, the proximity to UEA, hospitals and local amenities underpins strong rental demand from students and key workers. Note the area has average crime and deprivation levels; purchasers should factor standard management and refurbishment costs into purchase plans.

Property Details

Brochure Descriptions

Image Descriptions

Floorplan Description

Rooms

Textual Property Features

Target Audience

AI Tags

Detected Visual Features

EPC Details

Nearby Schools

Nearest Bars And Restaurants

,,,,}

Nearest General Shops

,,}

Nearest Grocery shops

,,}

Nearest Supermarkets

,,}

Nearest Religious buildings

,,}

Nearest Medical buildings

,,,}

Nearest Leisure Facilities

,,,,}

Nearest Tourist attractions

,,}

Nearest Train stations

,,,,}

Nearest Bus stations and stops

,,,,}

Nearest Hotels

,,}

Tags

Local Market Stats

Similar Properties

Meta

High Res Images

Compatible Images

Low res Images

Thumbnails

Raw Images

High Res Floorplan Images

Compatible Floorplan Images

Low res Floorplan Images

FloorplanImages Thumbnail

Raw Floorplan Images