Well-connected N7 home ideal for first-time buyers or buy-to-let purchasers.
Bright open-plan reception with dual-aspect windows
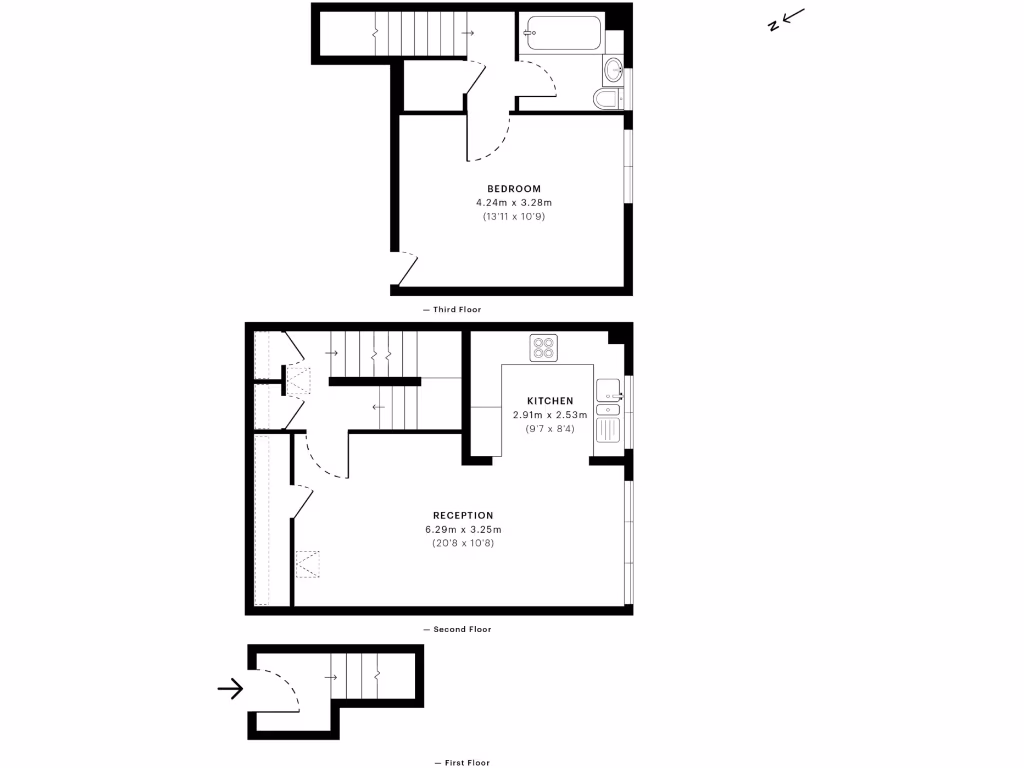
Set on a quiet residential street in N7, this one-bedroom flat offers bright, well-proportioned living across about 452 sq ft. The open-plan reception benefits from dual-aspect windows and natural light, with a modern fitted kitchen and straightforward contemporary finishes throughout. The bedroom comfortably fits a large bed and storage; the bathroom has a full-sized bath with overhead shower.
This flat suits first-time buyers or investors seeking a connected North London base: Highbury & Islington, Caledonian Road and Holloway Road stations are within easy reach for fast links into central London. Communal green spaces and a calm development setting add everyday convenience and outdoor space without high maintenance.
Important practical facts: the property is leasehold with 87 years remaining, a service charge of about £1,200pa and a ground rent of £10pa. The local area scores high for crime and is classified as very deprived, though broadband and mobile signal are excellent. The EPC is C and the building dates from the late 1970s, so buyers should factor in medium-term maintenance and potential longer-term lease considerations.
Overall this is a straightforward, well-located one-bedroom with clear commuter convenience and reasonable running costs — a sensible option for a first-time purchase or a let-ready investment, provided buyers are comfortable with the lease length and local area statistics.
1 bedroom apartment for sale in Buckmaster House, Holloway Road, N7 — £365,000 • 1 bed • 1 bath • 485 ft²
1 bedroom flat for sale in Camden Road, London, N7 — £300,000 • 1 bed • 1 bath • 533 ft²
1 bedroom apartment for sale in Hillmarton Road, Islington, London, N7 — £399,000 • 1 bed • 1 bath • 378 ft²
1 bedroom flat for sale in Centurion Close, Islington, London, N7 — £335,000 • 1 bed • 1 bath • 518 ft²
1 bedroom apartment for sale in Holloway Road, London, N7 — £435,000 • 1 bed • 1 bath • 501 ft²
1 bedroom flat for sale in Hornsey Street, N7 - Energy Rating B, N7 — £375,000 • 1 bed • 1 bath • 533 ft²






































