Detached home on a generous plot, ideal for practical downsizers seeking project potential.
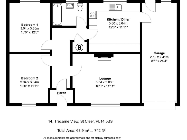
- Detached two-bedroom single-storey bungalow on a large mature plot
- Attached single garage plus driveway parking for multiple cars
- Available with no onward chain for quicker purchase
- Requires full modernisation and cosmetic renovation throughout
- Excellent mobile signal but slow broadband speeds on site
- Very low local crime and no flood risk
- Council tax is affordable for this property size
- Wider area shows relative deprivation; consider resale implications
A detached, single-storey bungalow set on a sizeable mature plot in a popular village location. The house offers two bedrooms, a lounge, kitchen/diner, bathroom, porch and an attached single garage with driveway parking. It is available with no onward chain, making it straightforward to progress.
The property benefits from excellent mobile signal, very low local crime and no flood risk. The plot offers privacy, mature landscaping and potential to create a low-maintenance garden or expand the footprint (subject to consents). Local schools and village amenities are within easy reach, and open countryside is visible nearby.
The bungalow requires renovation and modernization throughout; interior finishes and services will need updating. Broadband speeds are slow and the wider area shows relative deprivation, which may affect resale dynamics. For buyers seeking a practical, ground-floor home with scope to add value, this is a clear opportunity to create a comfortable, tailored residence.
2 bedroom semi-detached bungalow for sale in Moorland View, Liskeard, PL14 — £210,000 • 2 bed • 1 bath • 593 ft²
2 bedroom bungalow for sale in Trelawny Road, Menheniot, Liskeard, Cornwall, PL14 — £280,000 • 2 bed • 1 bath • 798 ft²
3 bedroom bungalow for sale in Lower Hillside, East Taphouse, Liskeard, Cornwall, PL14 — £350,000 • 3 bed • 2 bath • 2223 ft²
3 bedroom bungalow for sale in Wadham Road, Liskeard, Cornwall, PL14 — £275,000 • 3 bed • 1 bath • 830 ft²
3 bedroom bungalow for sale in Caradon View, St. Cleer, Liskeard, Cornwall, PL14 — £275,000 • 3 bed • 1 bath • 1082 ft²
3 bedroom detached bungalow for sale in Lowertown Close, Landrake, Saltash, PL12 — £400,000 • 3 bed • 1 bath • 764 ft²






























































