Characterful four-bedroom home close to town and rail links.
Grade II listed Georgian townhouse with strong period character
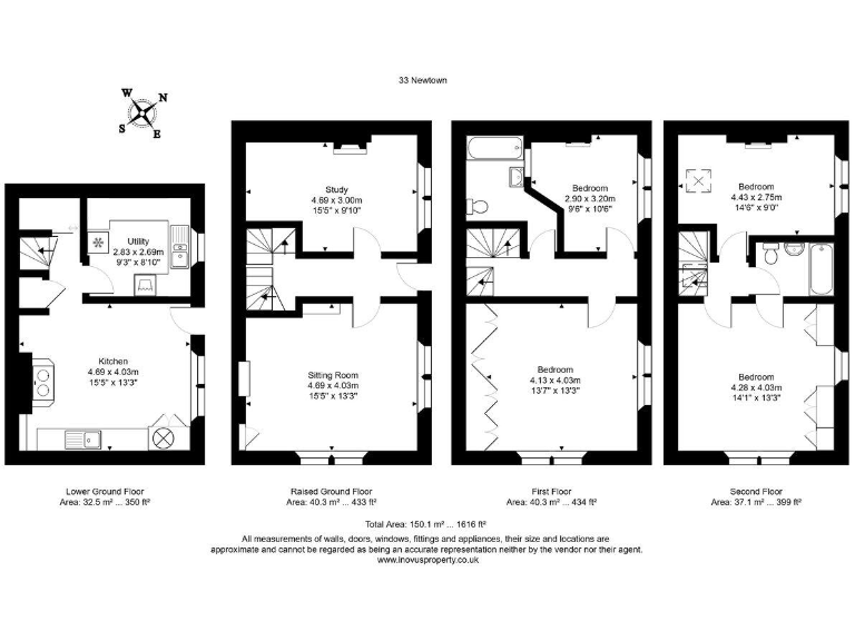
Set on an elevated, sought-after street in Bradford-on-Avon, this Grade II listed Georgian townhouse delivers generous period rooms and far-reaching town and countryside views. The house spans four floors with well-proportioned reception space, a bespoke lower-ground kitchen, useful cellar/covered storage and four bedrooms on the upper floors.
The property retains many original features including high ceilings, sash windows and an original fireplace, giving strong character throughout. A raised front courtyard garden offers a private outlook; rear external space is modest and typical for a town-centre home. Practical benefits include fast broadband, excellent mobile signal and very low local crime.
Buyers should note the listed status will limit alterations and require specialist consent and possibly higher maintenance costs. Internal areas show period character but may need selective modernisation; there is photographic indication of potential damp or mould in the living room that should be investigated.
Well placed for the town centre, local shops, mainline station and good local schools, the house will suit buyers seeking a characterful family home or an owner-occupier wanting a centrally located period townhouse with spectacular views rather than a large garden or extensive parking.
4 bedroom detached house for sale in Wine Street, Bradford-On-Avon, BA15 — £750,000 • 4 bed • 2 bath • 1554 ft²
3 bedroom terraced house for sale in Middle Rank, Bradford on Avon, Wiltshire, BA15 1NL, BA15 — £575,000 • 3 bed • 2 bath • 1358 ft²
2 bedroom terraced house for sale in Bridge Street, Bradford-on-Avon, BA15 — £400,000 • 2 bed • 2 bath • 886 ft²
2 bedroom terraced house for sale in Tory, Bradford-On-Avon, BA15 — £375,000 • 2 bed • 1 bath • 781 ft²
2 bedroom terraced house for sale in Newtown, Bradford on Avon, BA15 — £425,000 • 2 bed • 1 bath • 969 ft²
2 bedroom terraced house for sale in Bradford on Avon, BA15 — £575,000 • 2 bed • 2 bath • 1172 ft²


































































