Character-filled multi-level cottage with breathtaking town and countryside views.
Grade II listed former weavers' cottage with strong period character
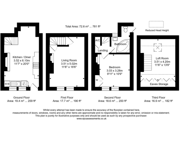
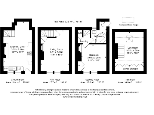
This Grade II listed former weavers’ cottage is a compact, characterful home arranged over four floors with genuinely exceptional panoramic views across Bradford-on-Avon. High ceilings, sash windows, exposed floorboards and working fireplaces give the house strong period appeal, while a sociable open-plan kitchen/dining room with fitted Neff appliances and a wood-burning stove forms the heart of the home.
Practical positives include gas central heating with a brand-new boiler, chain-free sale, and the sale including furnishings and contents — useful for a buyer seeking a quick move. The small, sunny front garden and paved seating terrace are positioned to make the most of the outlook and offer a private spot to sit out and soak up the view.
There are some material constraints to note. Listed status means alterations will be restricted and may complicate upgrades. The cottage sits on a steep, pedestrianised slope with no private parking — access from the town and station requires a steep walk. The footprint is compact across multiple floors, which will suit those comfortable with stairs but could be limiting for mobility needs or buyers seeking large, level living spaces.
Overall, this property will appeal to buyers wanting period character, stunning long-range views and town-centre convenience rather than a large garden or off-street parking. It represents a ready-to-enjoy, low-maintenance period home with potential to optimise internal layout within listed constraints.
3 bedroom terraced house for sale in Tory, Bradford-on-Avon, Wiltshire, BA15 — £595,000 • 3 bed • 2 bath • 985 ft²
2 bedroom terraced house for sale in Bradford on Avon, BA15 — £575,000 • 2 bed • 2 bath • 1172 ft²
2 bedroom terraced house for sale in Newtown, Bradford on Avon, BA15 — £425,000 • 2 bed • 1 bath • 969 ft²
1 bedroom cottage for sale in Ivy Terrace, Bradford-on-Avon, BA15 — £275,000 • 1 bed • 1 bath • 565 ft²
3 bedroom terraced house for sale in Newtown, Bradford-on-Avon, Wiltshire, BA15 — £525,000 • 3 bed • 1 bath • 1371 ft²
3 bedroom terraced house for sale in Middle Rank, Bradford on Avon, Wiltshire, BA15 1NL, BA15 — £575,000 • 3 bed • 2 bath • 1358 ft²


















































































