**Standout Features:**
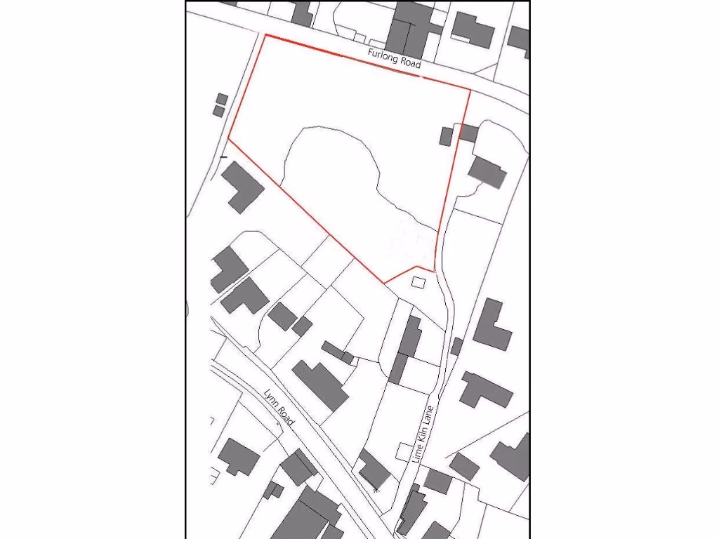
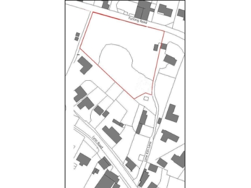
- Unique, individual building plot nestled in a private and mature setting
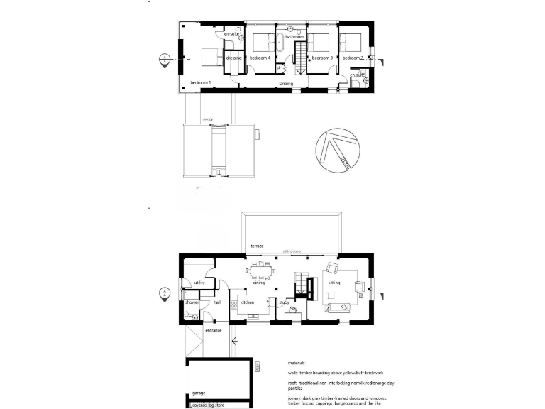
- Planning consent for a 250 sqm contemporary 4-bedroom family home, including a garage
- Set within a conservation area, surrounded by stunning natural woodlands
- Spacious open-plan living/dining/kitchen area, separate study, utility room, and two en-suite bedrooms
- Located in Stoke Ferry village, offering local amenities and easy transport links
**Concerns:**
- Current ground condition needs to be assessed due to the previous chalk quarry site
- No insulation in existing structures; may require additional work for desired comfort
- Average mobile signal and broadband speeds
Discover an exceptional opportunity to build your dream home on this expansive plot in the charming village of Stoke Ferry. With approved planning for a stylish 4-bedroom residence, this property provides the foundation for your future family oasis. The design emphasizes an open-plan lifestyle, surrounded by picturesque woodlands that offer privacy and serenity. Enjoy local conveniences such as a primary school and a community pub, all while being well-connected for commuting to London and Cambridge.
While the land presents a unique potential, prospective buyers should conduct a thorough assessment of the site’s past usage as a chalk quarry. This is a rare opportunity to capture rural living at its finest – don’t miss out on making this exceptional plot your own!
 3 bedroom bungalow for sale in Furlong Road, Stoke Ferry, King's Lynn, Norfolk, PE33 — £425,000 • 3 bed • 2 bath • 2533 ft²
 3 bedroom bungalow for sale in Furlong Road, Stoke Ferry, King's Lynn, Norfolk, PE33 — £425,000 • 3 bed • 2 bath • 2533 ft² 4 bedroom detached house for sale in The Hollow, Stoke Ferry, King's Lynn, PE33 — £625,000 • 4 bed • 3 bath • 2000 ft²
 4 bedroom detached house for sale in The Hollow, Stoke Ferry, King's Lynn, PE33 — £625,000 • 4 bed • 3 bath • 2000 ft² 3 bedroom detached bungalow for sale in Wretton Road, Stoke Ferry, PE33 — £440,000 • 3 bed • 1 bath • 1230 ft²
 3 bedroom detached bungalow for sale in Wretton Road, Stoke Ferry, PE33 — £440,000 • 3 bed • 1 bath • 1230 ft² 6 bedroom end of terrace house for sale in High Street, Stoke Ferry, King's Lynn, Norfolk, PE33 — £550,000 • 6 bed • 3 bath • 6500 ft²
 6 bedroom end of terrace house for sale in High Street, Stoke Ferry, King's Lynn, Norfolk, PE33 — £550,000 • 6 bed • 3 bath • 6500 ft² 3 bedroom detached bungalow for sale in Stoke Ferry, Norfolk, PE33 — £475,000 • 3 bed • 2 bath • 1023 ft²
 3 bedroom detached bungalow for sale in Stoke Ferry, Norfolk, PE33 — £475,000 • 3 bed • 2 bath • 1023 ft² 2 bedroom detached bungalow for sale in Little Lane, Stoke Ferry, King's Lynn, PE33 — £270,000 • 2 bed • 1 bath • 911 ft²
 2 bedroom detached bungalow for sale in Little Lane, Stoke Ferry, King's Lynn, PE33 — £270,000 • 2 bed • 1 bath • 911 ft²


























































































