Expansive period residence with versatile multi‑generational layout.
Grade II listed former granary, sympathetically renovated throughout
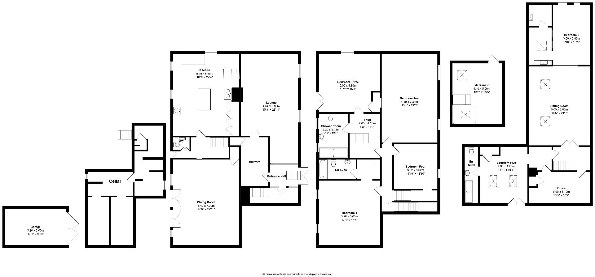
This former Grade II listed granary has been sympathetically renovated to retain original character while offering nearly 6,500 sq ft of flexible living space across four floors. High ceilings, exposed beams and period features combine with generous reception rooms and a high-spec kitchen, creating a rare family home with strong entertaining potential.
The accommodation includes six bedrooms, a master with dressing area and en suite, plus a self-contained second-floor arrangement suitable for multi-generational living or a home office/annexe. The rear courtyard is low maintenance with a large sun patio for alfresco dining; a garage/workshop with off-road parking adds practical storage and parking.
Practical details to note: the property uses oil-fired central heating and drains to a septic tank, and it is exempt from an EPC because of its listed status. Grade II listing protects historic fabric but will limit structural changes and may cause additional consent requirements or costs.
An in-person viewing is strongly recommended to appreciate the scale, period detail and flexible layout. The village setting offers primary schooling, local shops, countryside walks and good access to larger towns and transport links for commuting.
4 bedroom character property for sale in High Street, Stoke Ferry, PE33 — £390,000 • 4 bed • 1 bath • 1927 ft²
3 bedroom semi-detached house for sale in High Street, Stoke Ferry, King's Lynn, Norfolk, PE33 — £465,000 • 3 bed • 2 bath • 1680 ft²
4 bedroom detached house for sale in The Hollow, Stoke Ferry, King's Lynn, PE33 — £625,000 • 4 bed • 3 bath • 2000 ft²
3 bedroom detached bungalow for sale in Stoke Ferry, Norfolk, PE33 — £450,000 • 3 bed • 2 bath • 1023 ft²
3 bedroom bungalow for sale in Furlong Road, Stoke Ferry, King's Lynn, Norfolk, PE33 — £425,000 • 3 bed • 2 bath • 2533 ft²
5 bedroom detached house for sale in The Hollow, Stoke Ferry, King's Lynn, Norfolk, PE33 — £500,000 • 5 bed • 4 bath • 2476 ft²


























































































































































































