**Standout Features:**
- Chain-free detached bungalow
- Three bedrooms (two doubles, one single)
- Spacious open-plan living/dining room and conservatory
- Updated gas central heating system
- Private, secluded garden
- Garage with power and lighting
- Decent plot size in a quiet, affluent area
**Potential Concerns:**
- Dated exterior in need of landscaping
- Average mobile signal
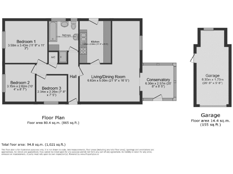
Nestled in the desirable suburb of Magpie Way, Winslow, this charming three-bedroom detached bungalow presents an exceptional opportunity for homeowners and investors alike. With a spacious layout, the property features two double bedrooms and one single bedroom, making it ideal for a small family. The heart of the home is the inviting open-plan L-shape living/dining room, complemented by a bright conservatory that overlooks a private garden, perfect for relaxation and gatherings.
The bungalow boasts a modernized gas central heating system and ample storage with a garage that includes power and lighting. While the exterior may need a little TLC with landscaping, the potential is ripe for personal touches to create a tranquil retreat. Located in a low-crime, affluent neighborhood, this home offers access to good schools, quaint local shops, and is set to benefit from an upcoming railway station that enhances connectivity to Oxford and Cambridge. Don't miss your chance to invest in this peaceful, family-friendly environment—ideal for those seeking comfort and growth potential in a suburban gem.
2 bedroom bungalow for sale in Leapingwell Lane, Winslow, Buckingham, MK18 — £325,000 • 2 bed • 1 bath • 690 ft²
3 bedroom bungalow for sale in The Spinney, Winslow, Buckingham, MK18 — £475,000 • 3 bed • 1 bath • 927 ft²
3 bedroom bungalow for sale in Leapingwell Lane, Winslow, Buckingham, MK18 — £450,000 • 3 bed • 2 bath • 978 ft²
3 bedroom bungalow for sale in Lake Close, Winslow, MK18 — £400,000 • 3 bed • 1 bath • 816 ft²
3 bedroom bungalow for sale in Cricketers Row, Winslow, Buckingham, MK18 — £550,000 • 3 bed • 1 bath • 1194 ft²
3 bedroom bungalow for sale in Ovitts Close, Winslow, Buckingham, MK18 — £495,000 • 3 bed • 1 bath • 1266 ft²






































































